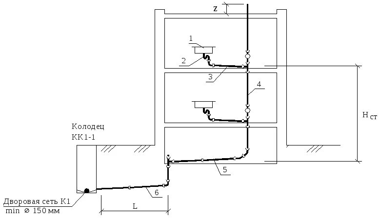
1 система канализации