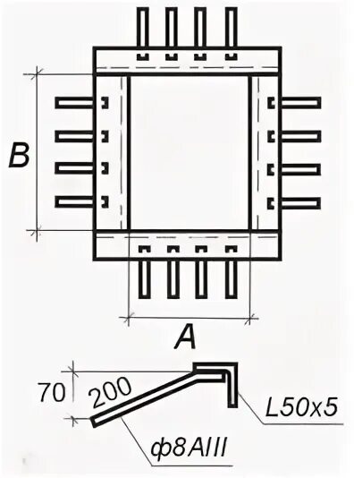
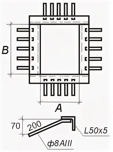
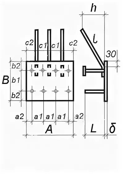
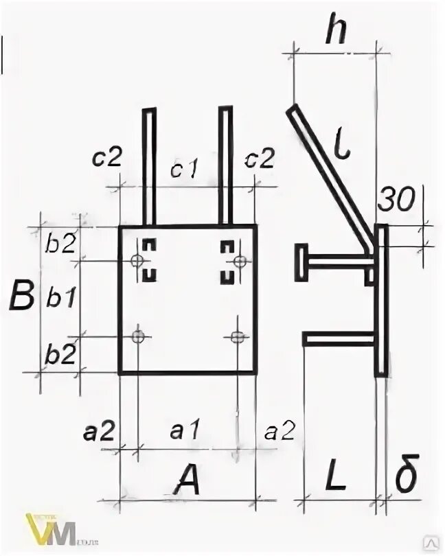
1.400 15 выпуск 0