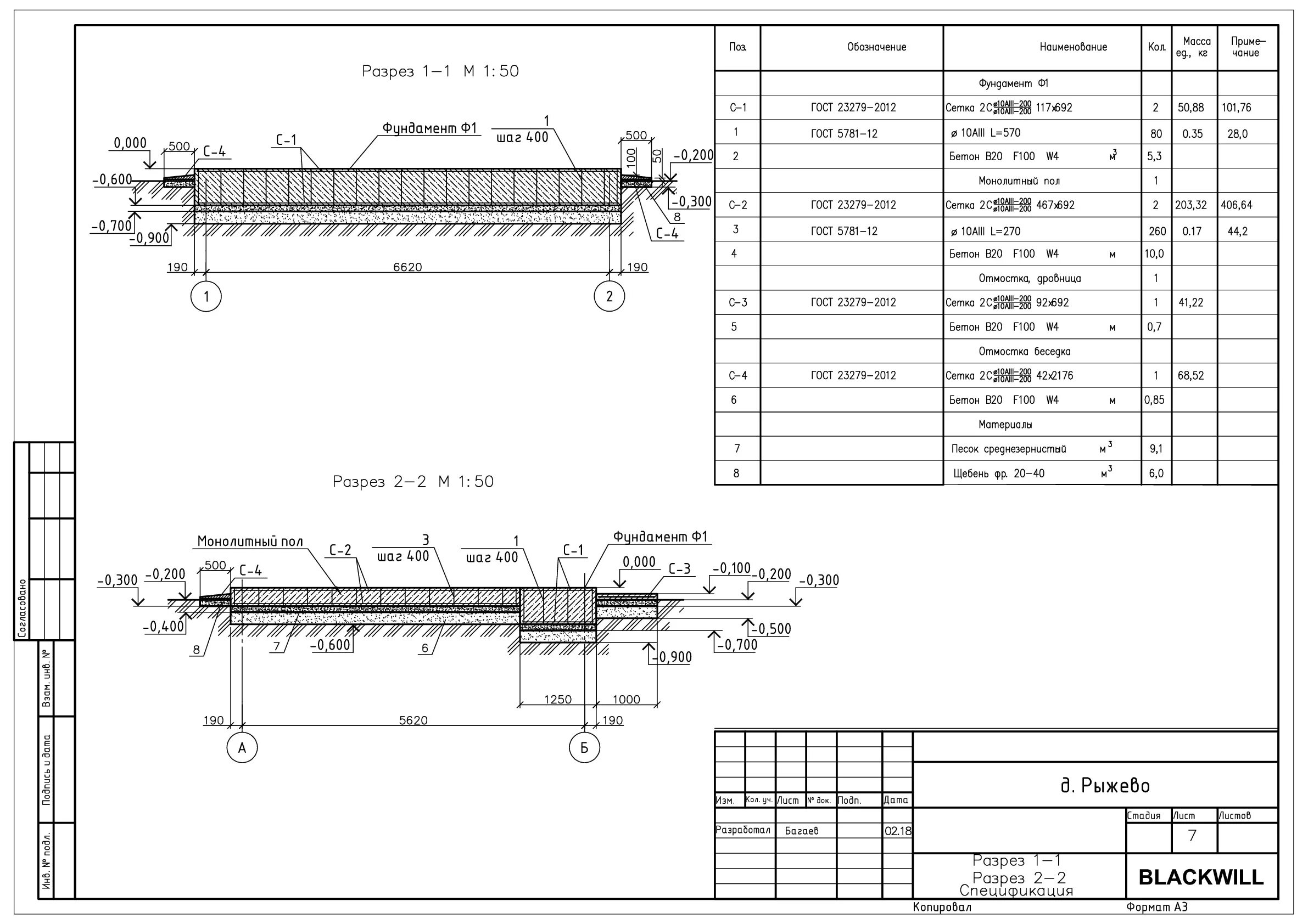
23279 2012