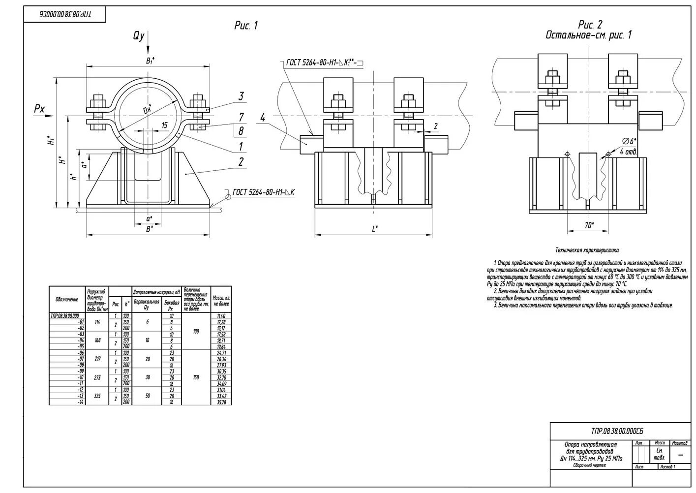
38.00 00