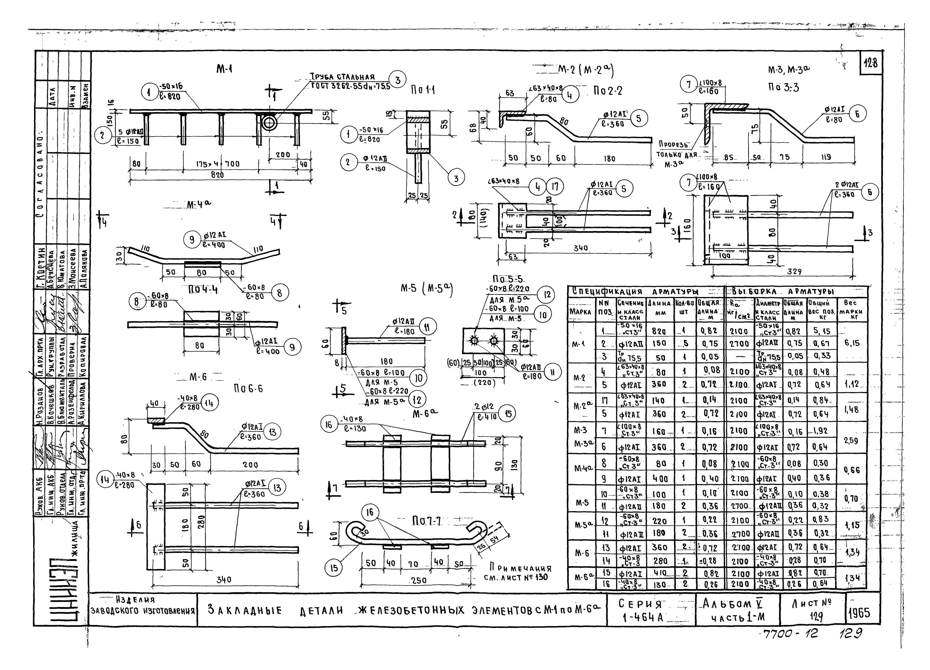
464 пп