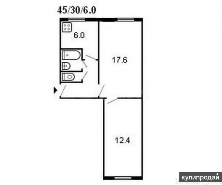
48 42 6 1