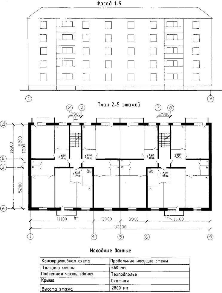
5 этажный дом в метрах