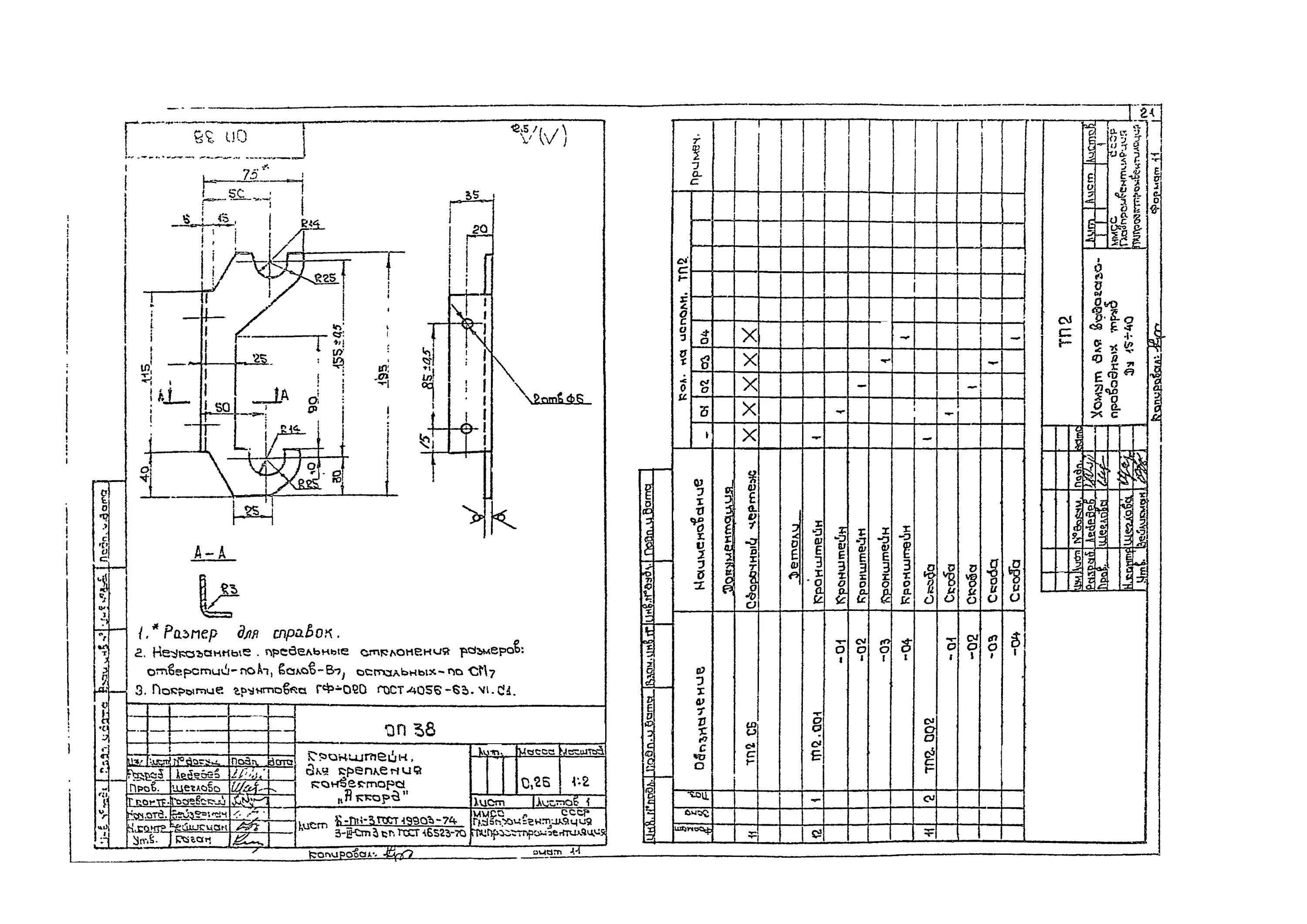
69 трубопровод