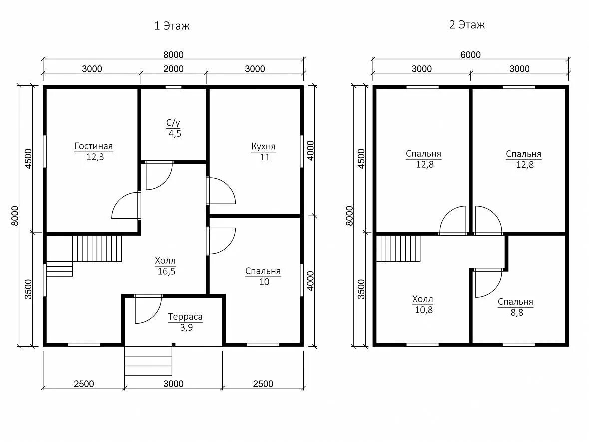
8 на 8 двухэтажный