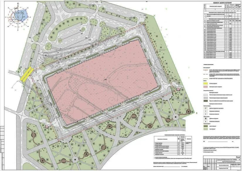
Агр проекта