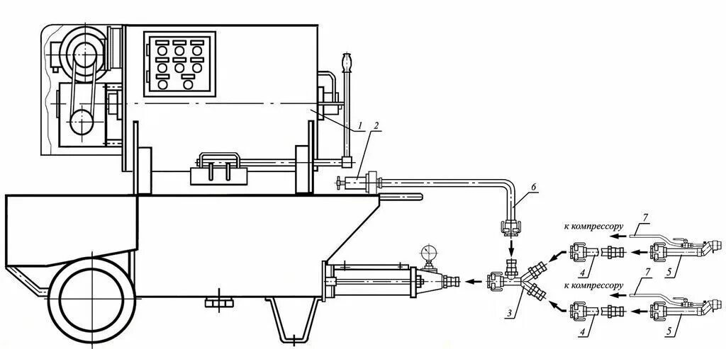
Агрегат т