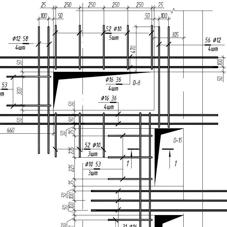
Арматура в отверстии