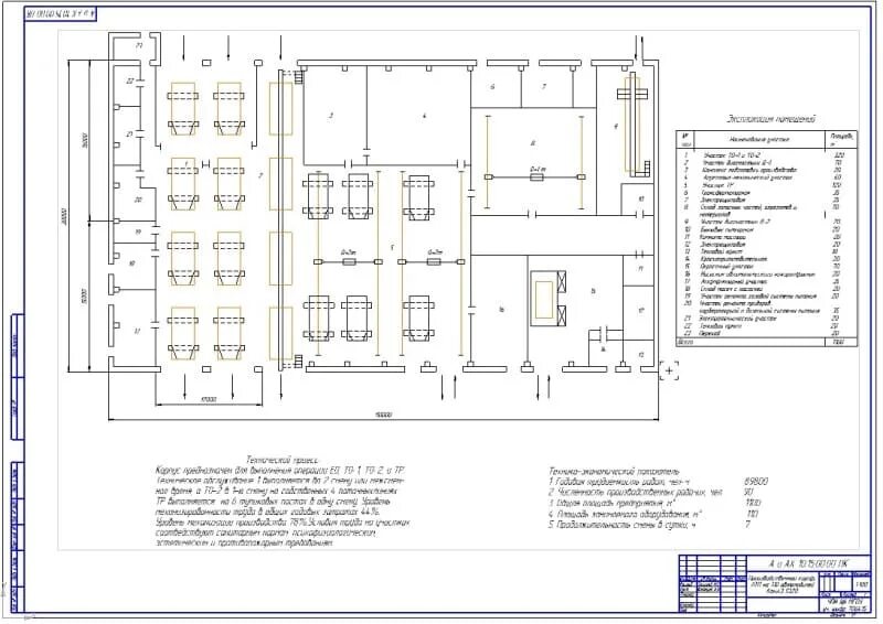
Атп 100