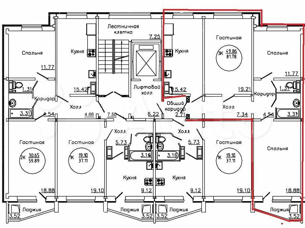
Азовский проезд