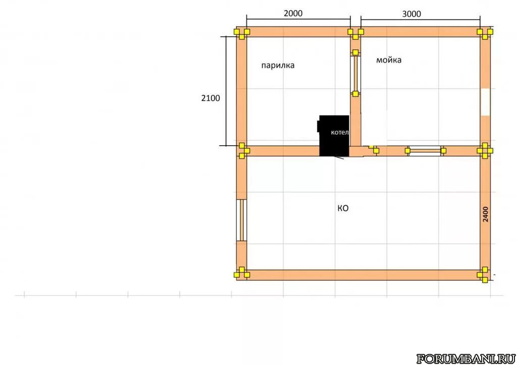
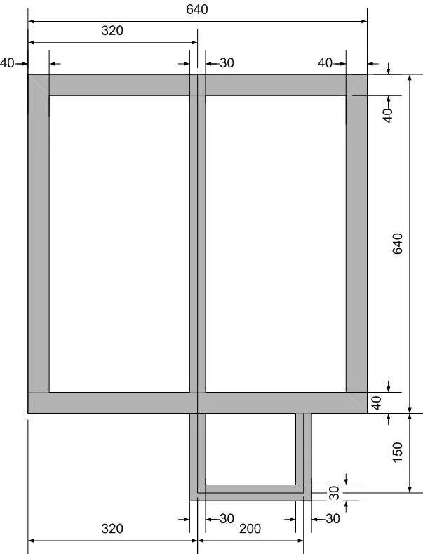
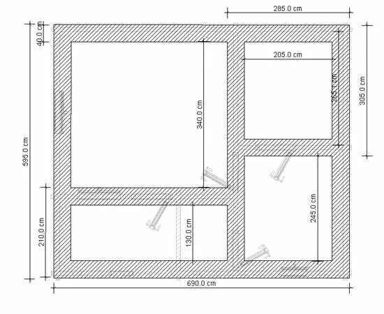
Баня чертеж фундамента