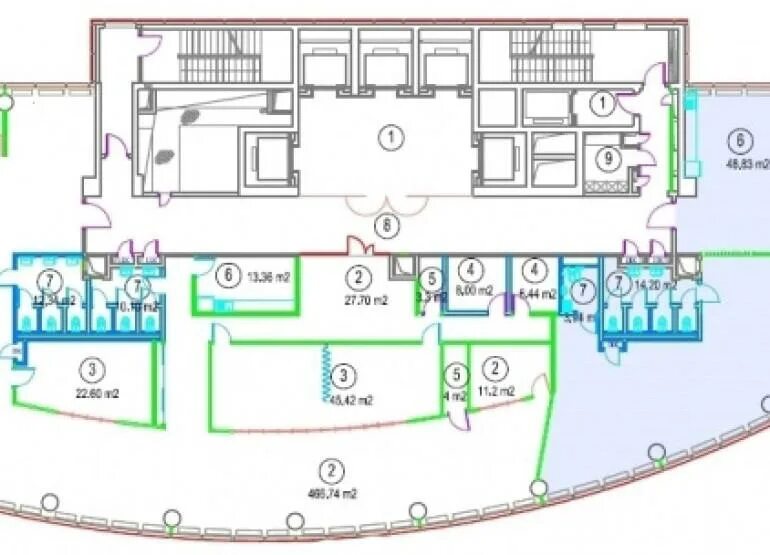
Башня северный блок