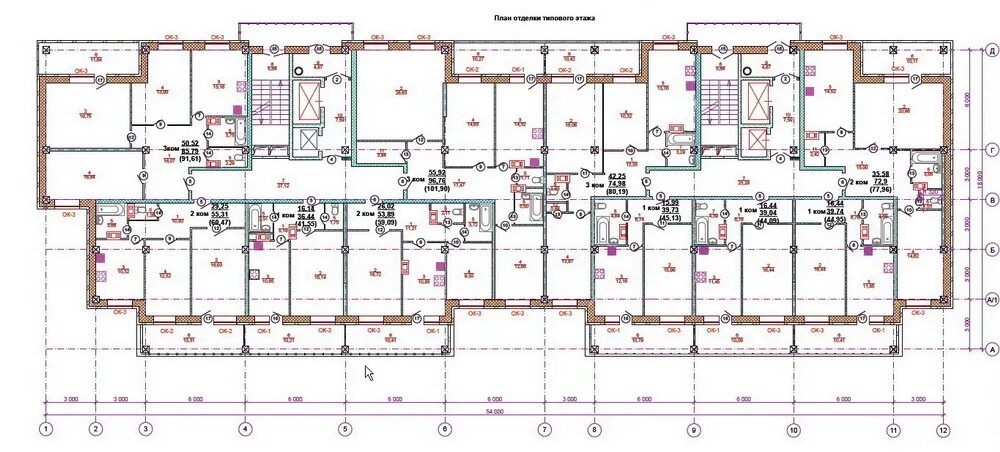
Белинского 123