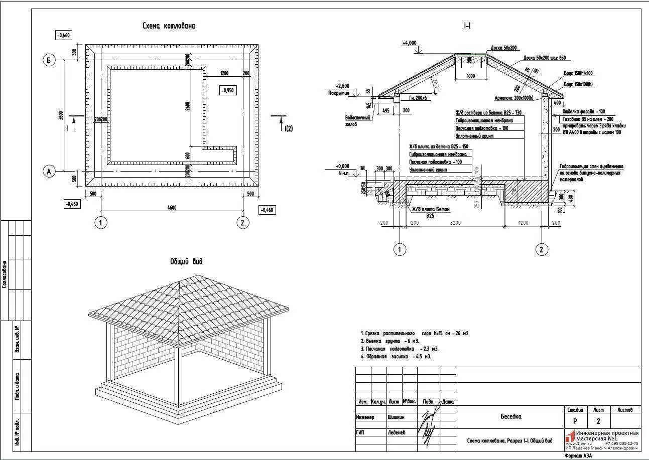
Беседка из кирпича размеры