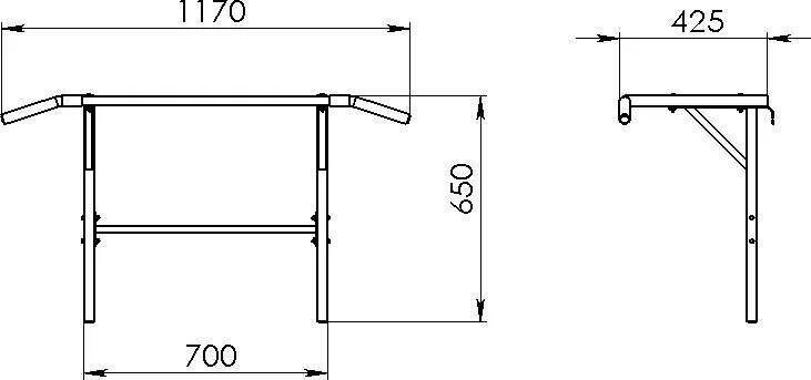
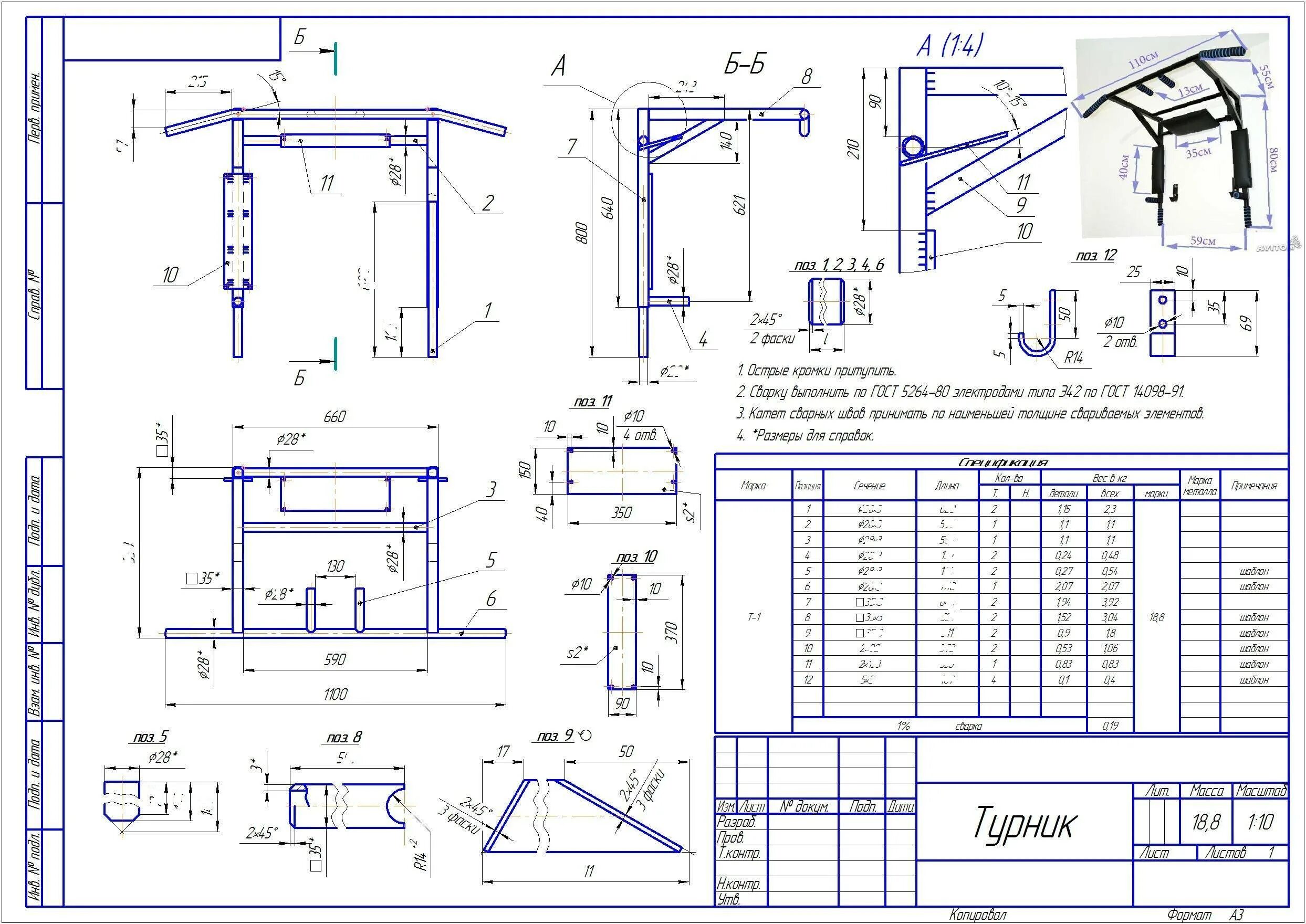
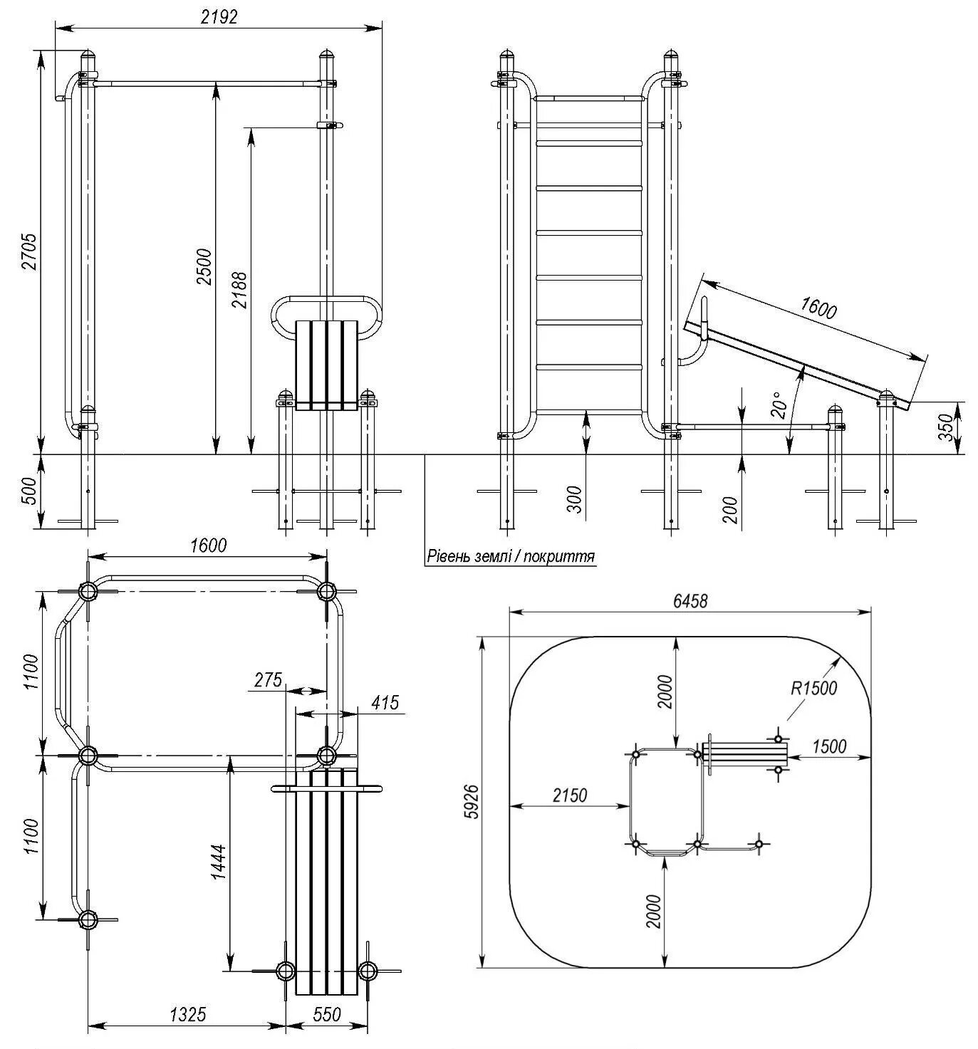
Брусья схема размеры