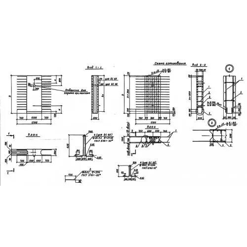
Бс 30