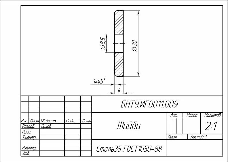
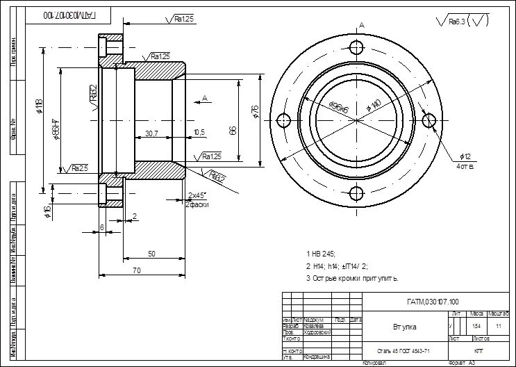
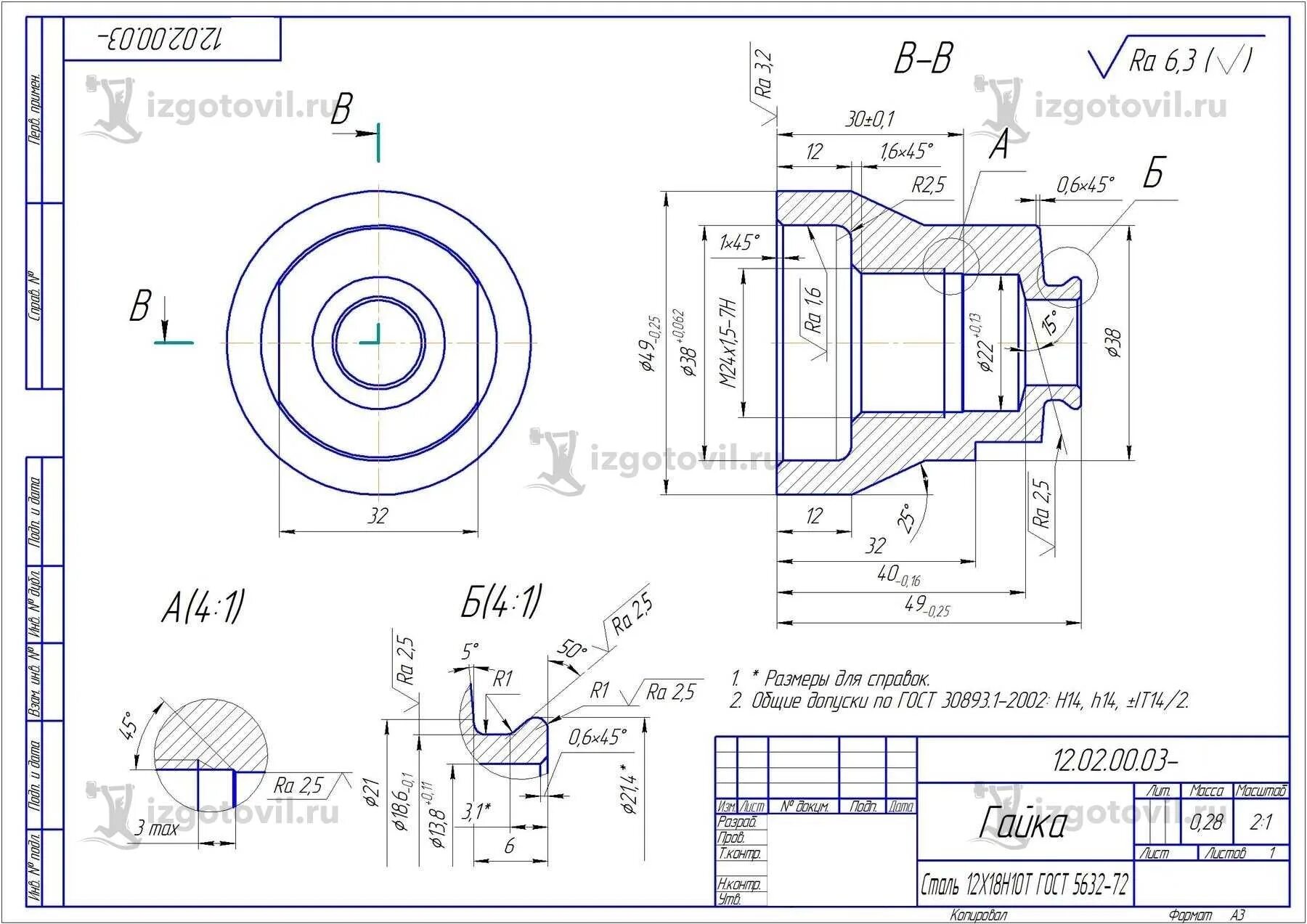
Чертеж детали из стали