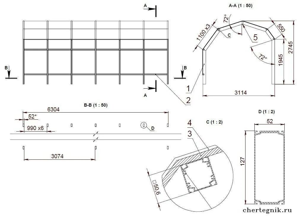
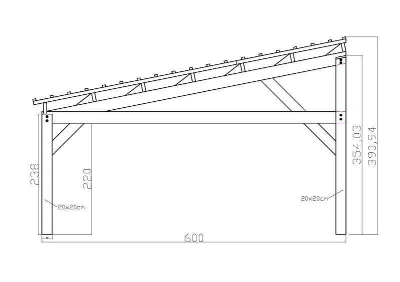
Чертеж навеса из дерева к дому