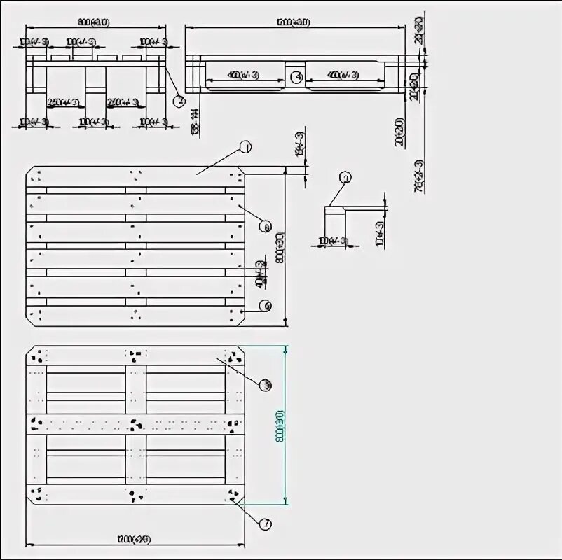
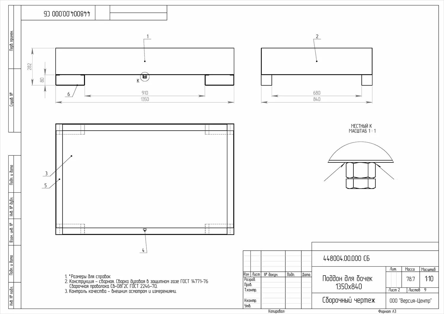
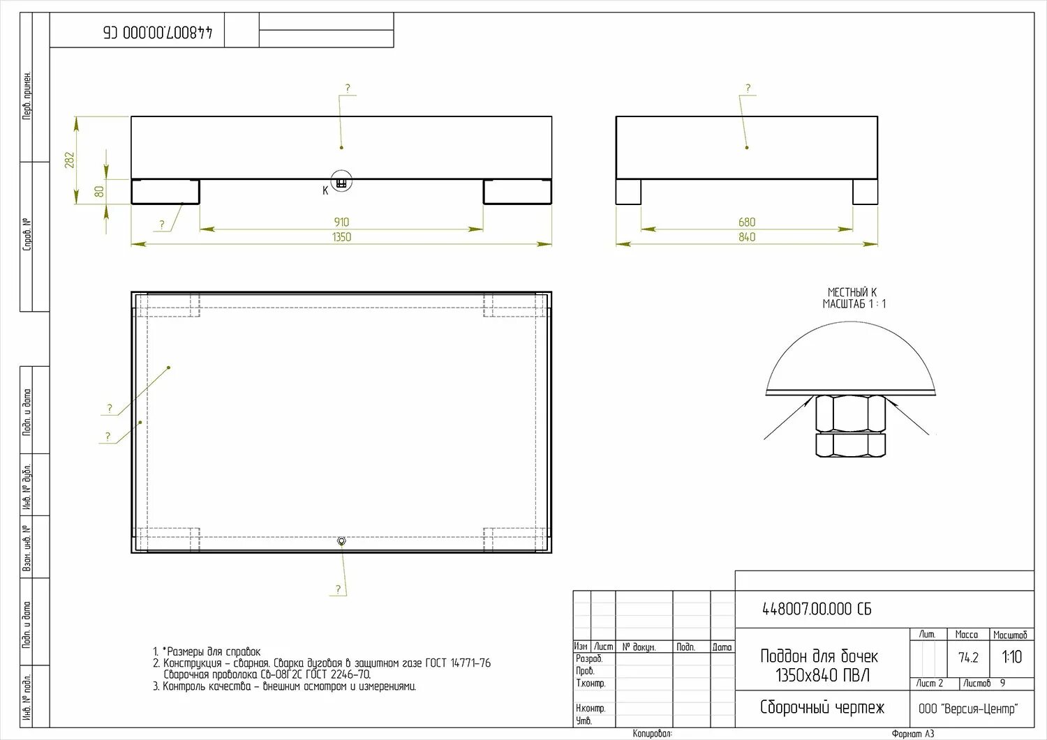
Чертеж поддона