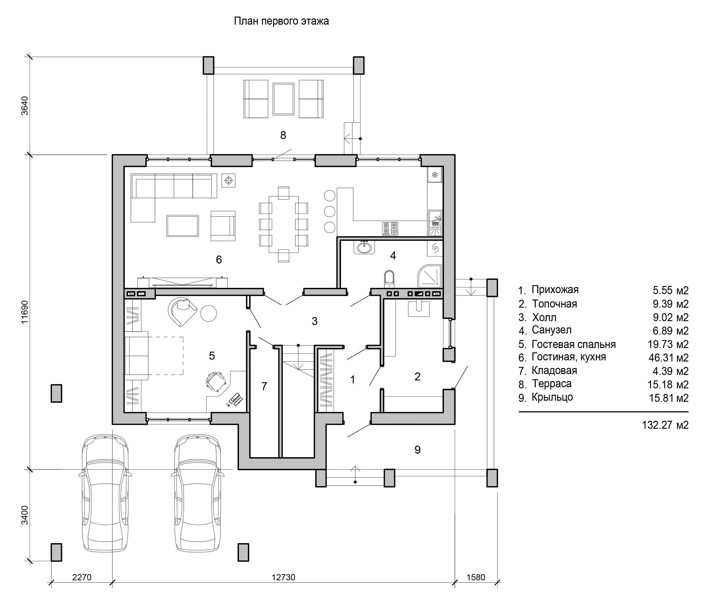
Чертеж загородного дома