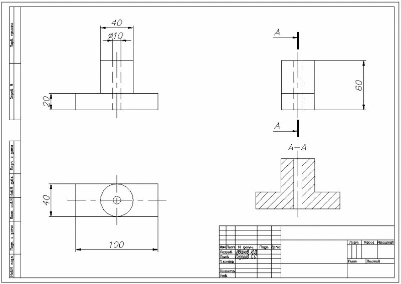
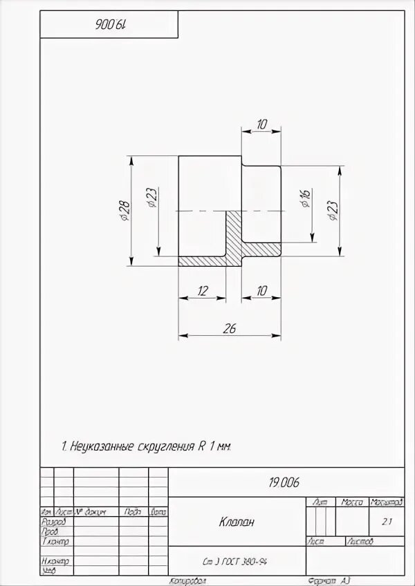
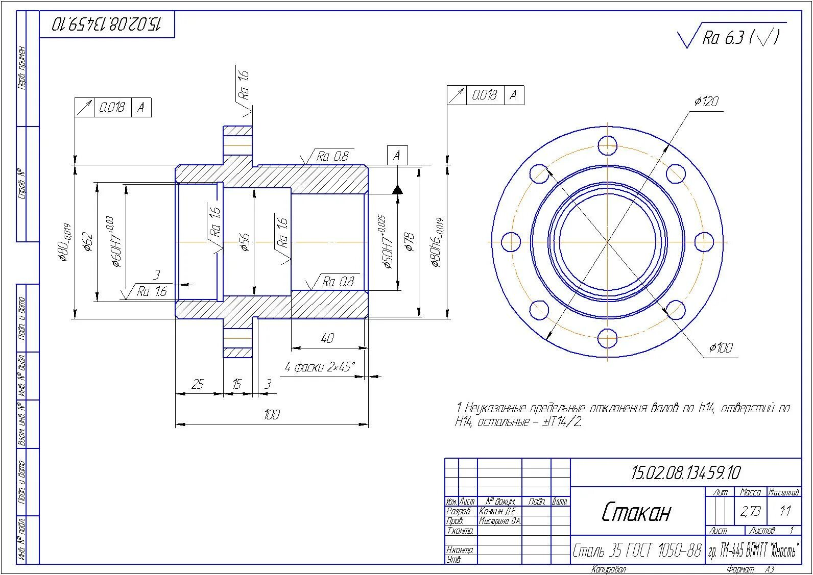
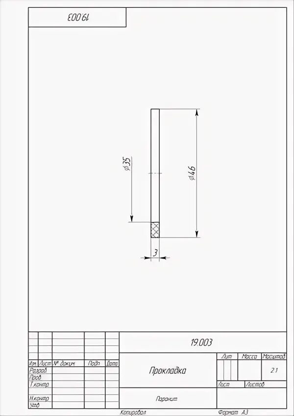
Деталь 19