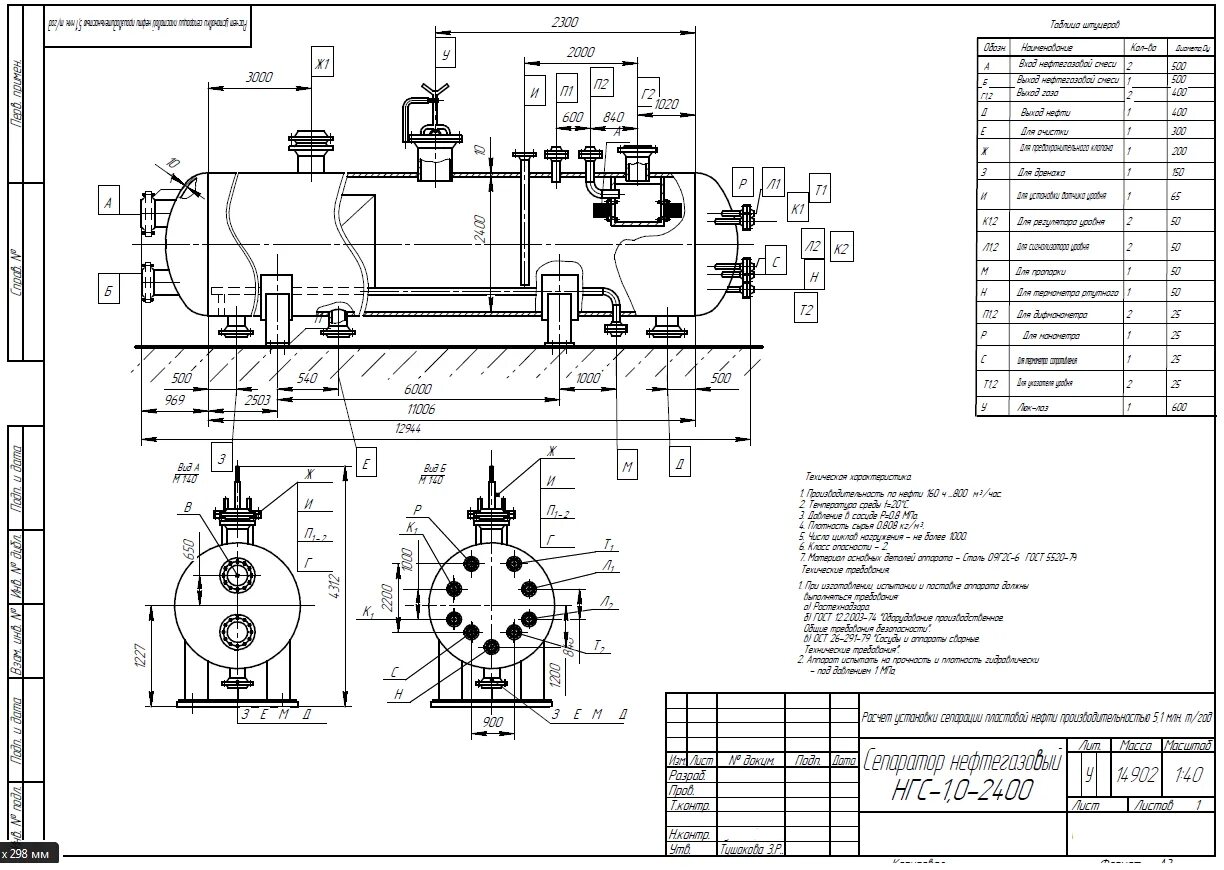
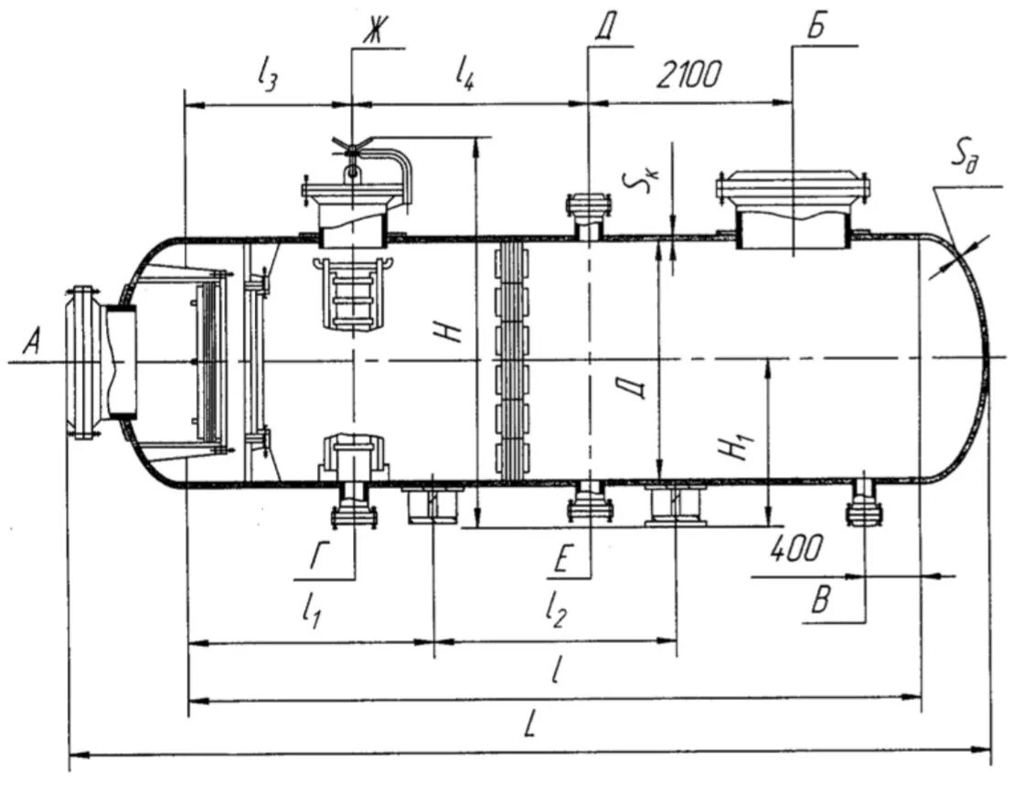
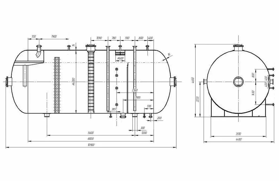
Длина сепаратор