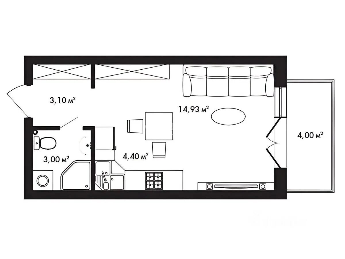
Дом 21 кв м