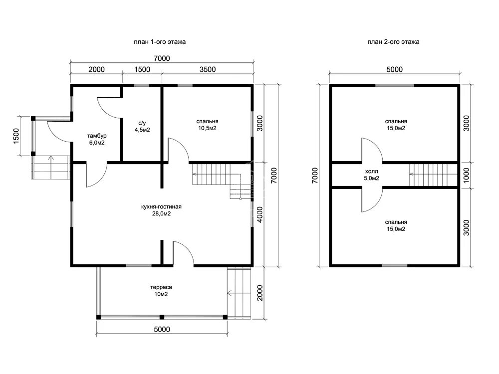
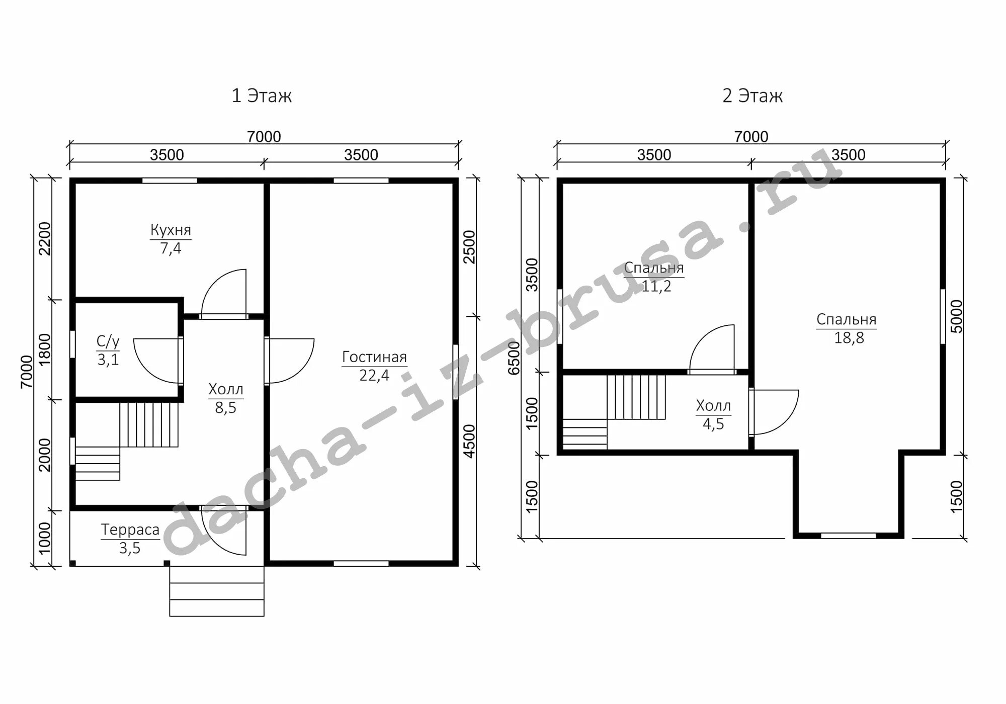
Дом 7 x 7