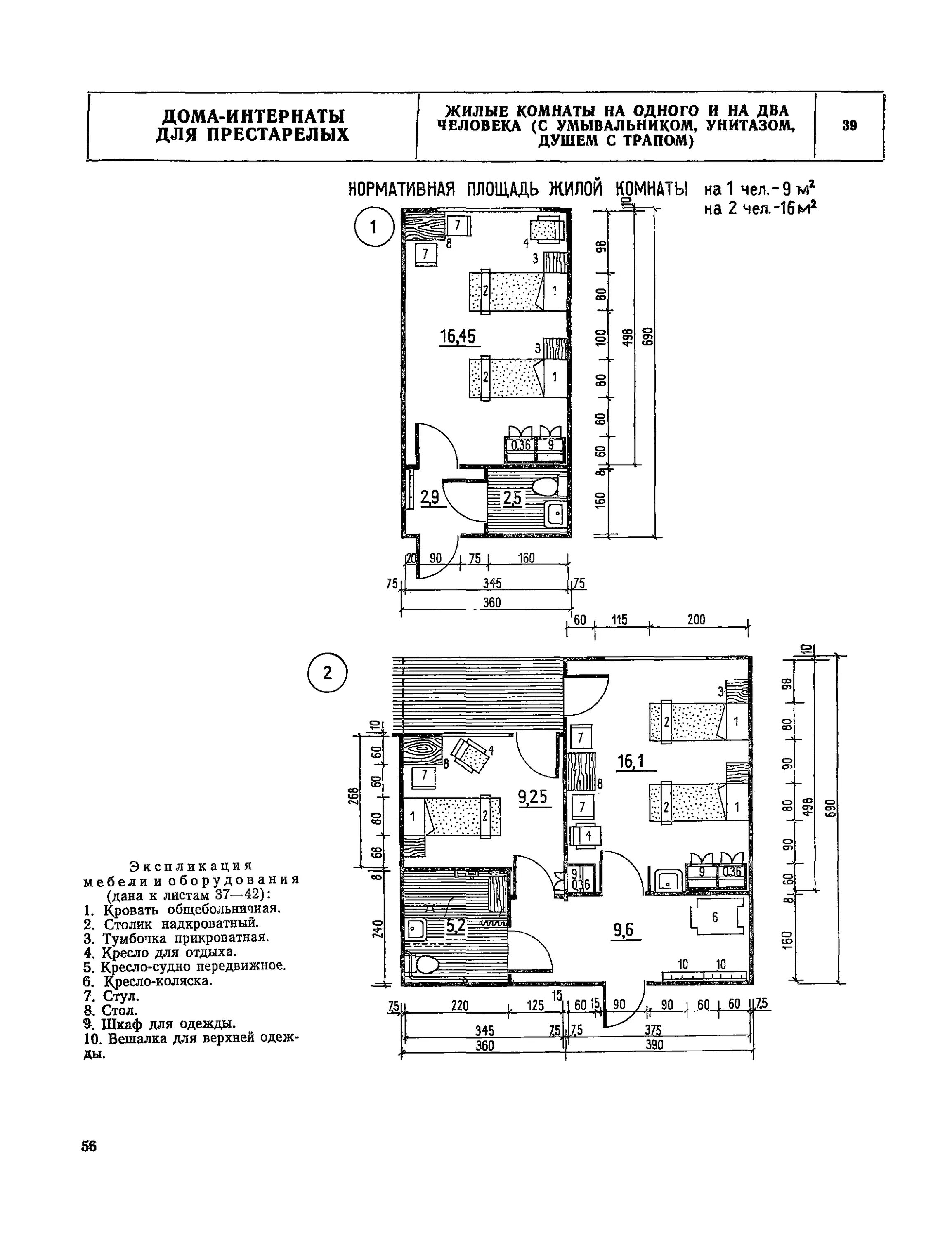
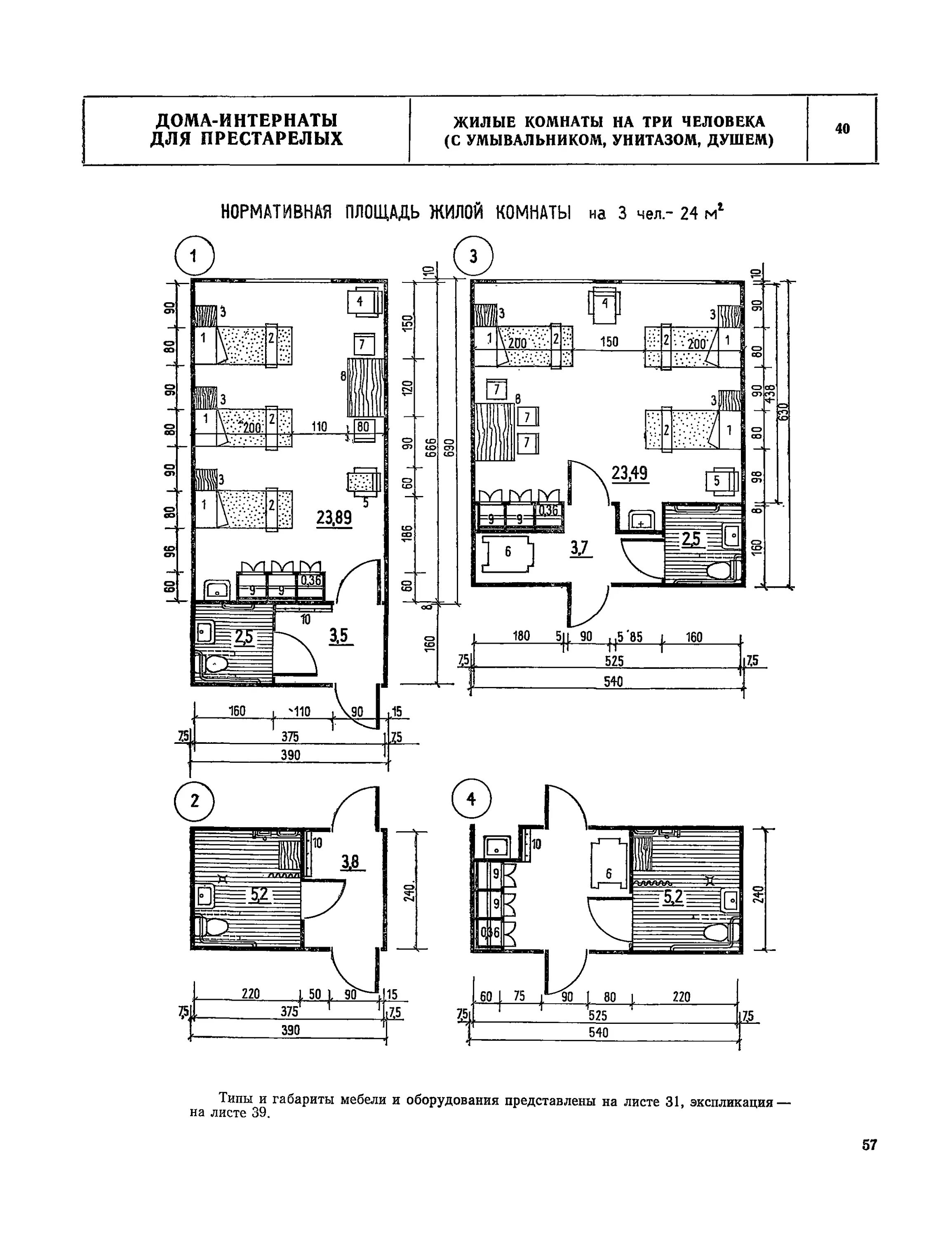
Дома интернаты планы