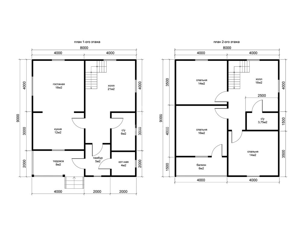
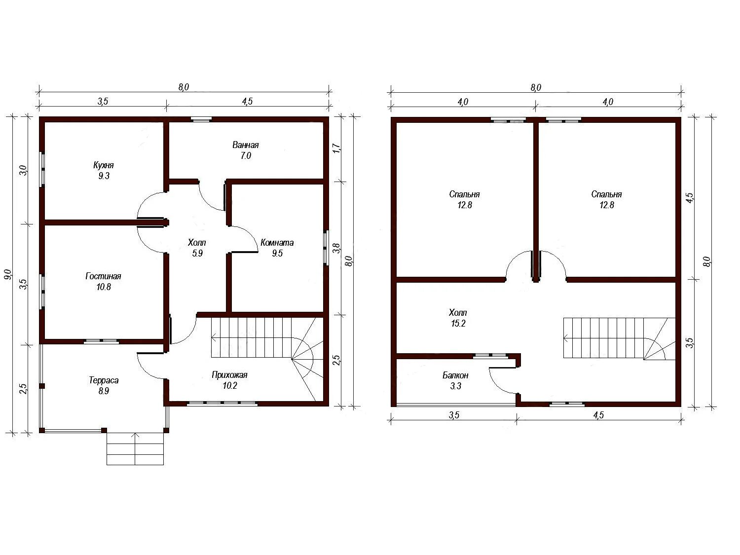
Двухэтажный дом 8 на 9