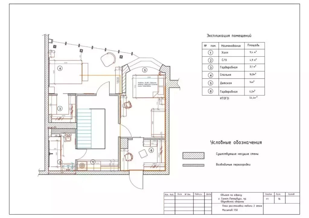
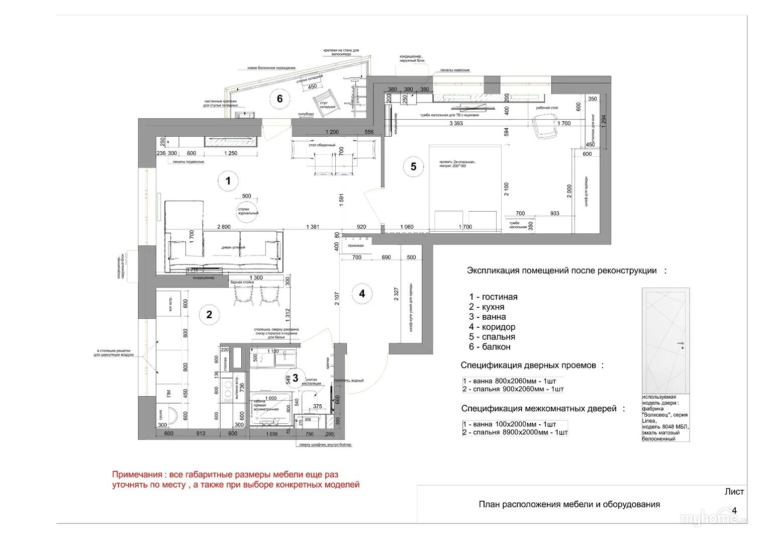
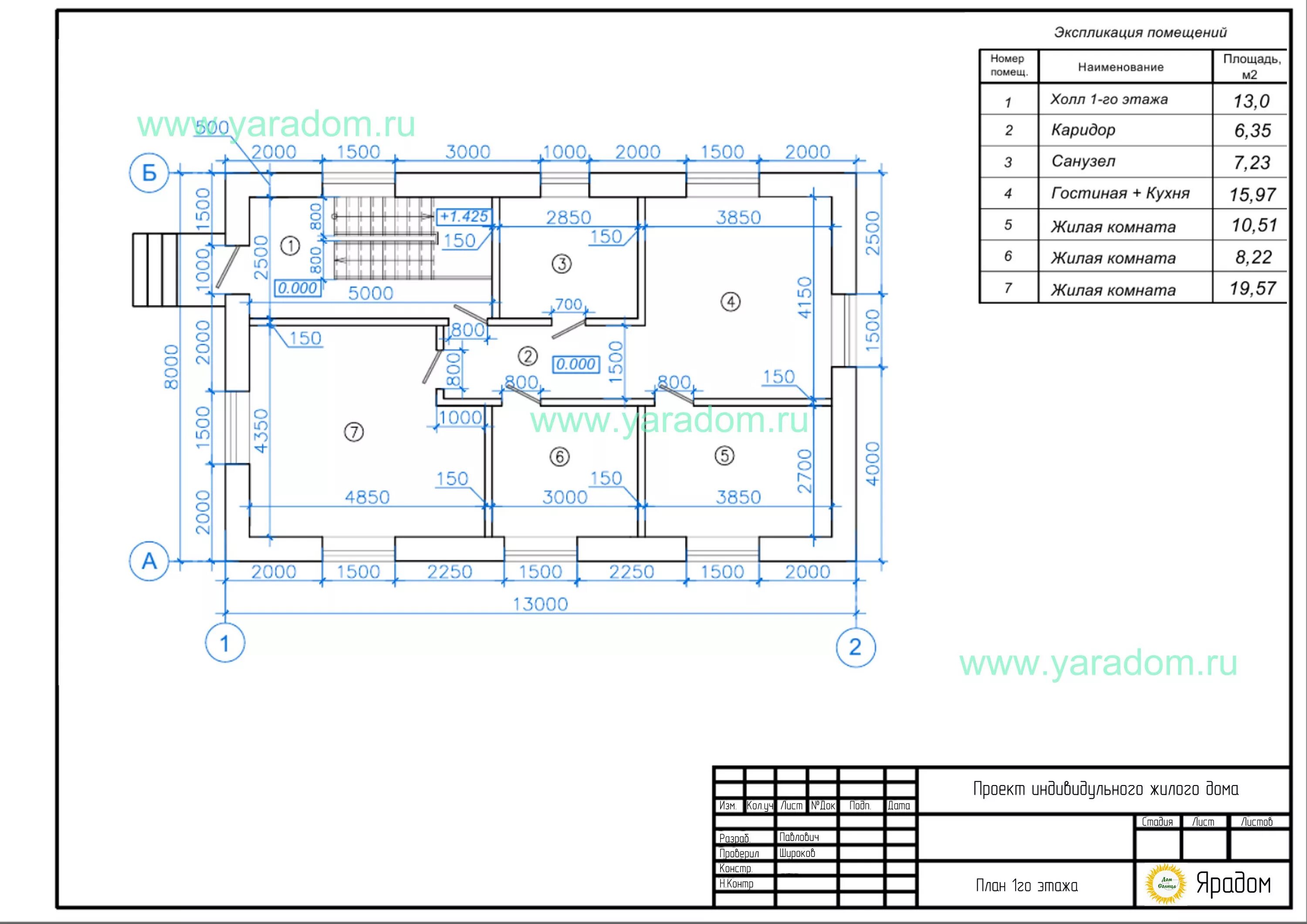
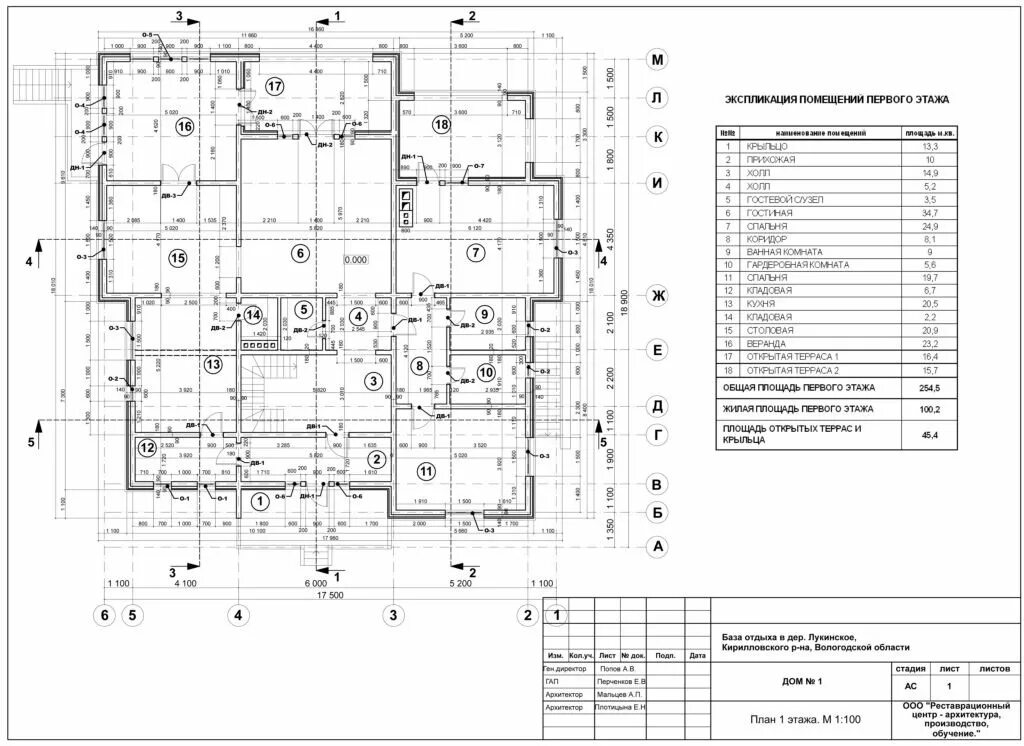
Экспликация помещений размеры