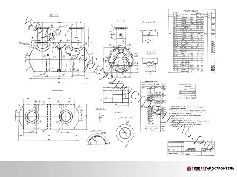
Емкость 2 м3 масса