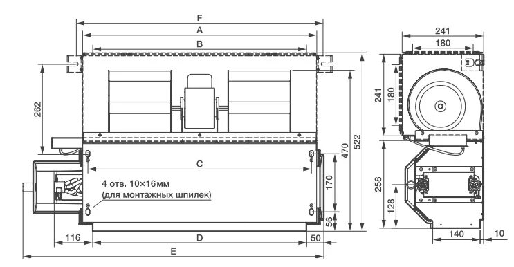
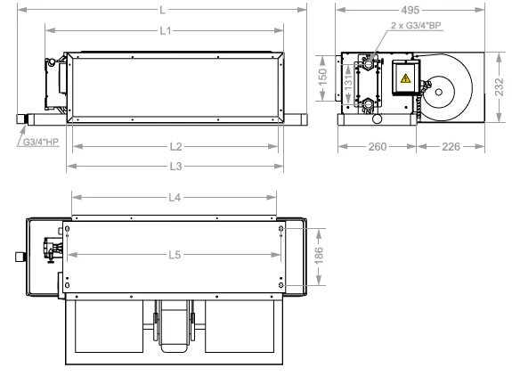
Фанкойлы eff