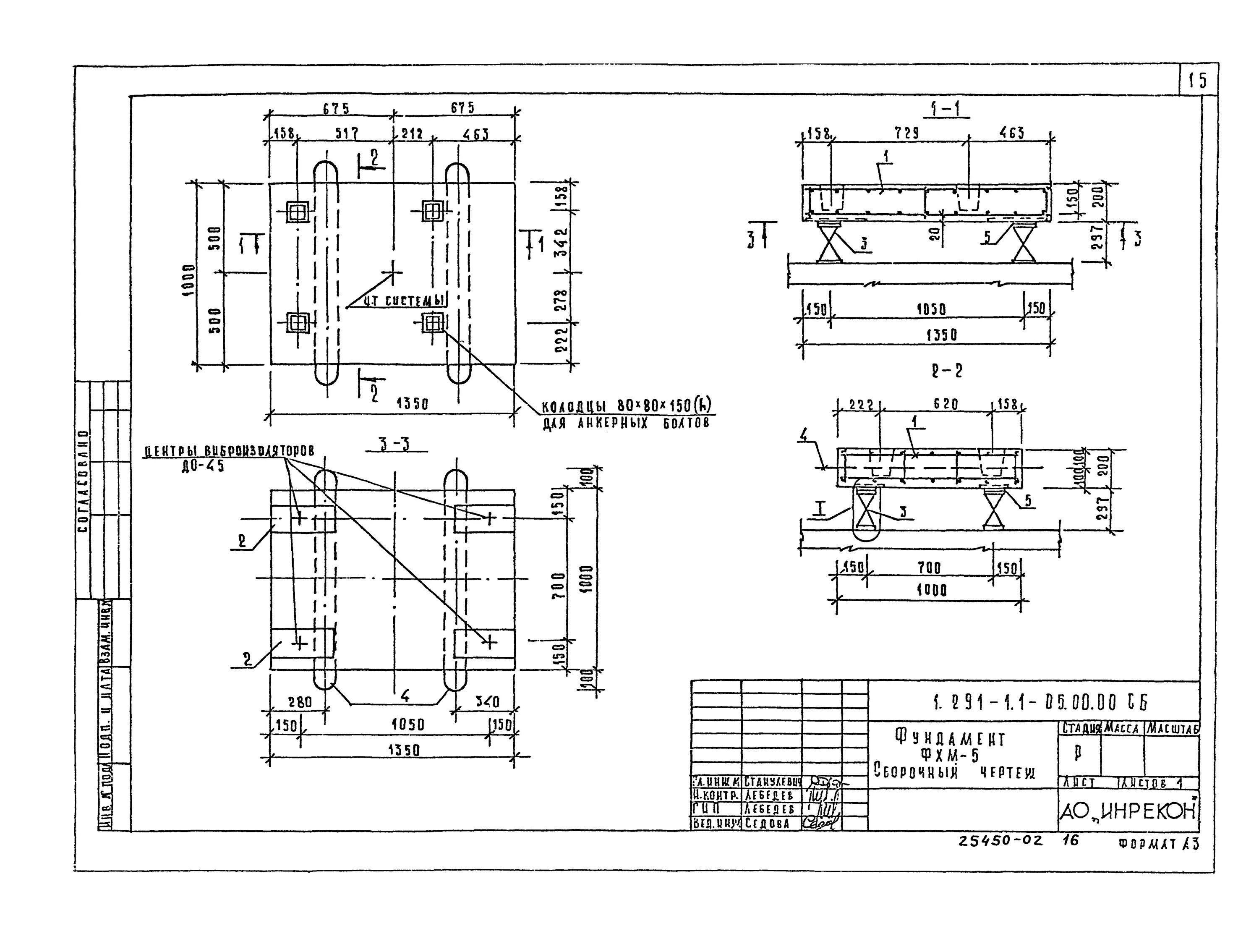
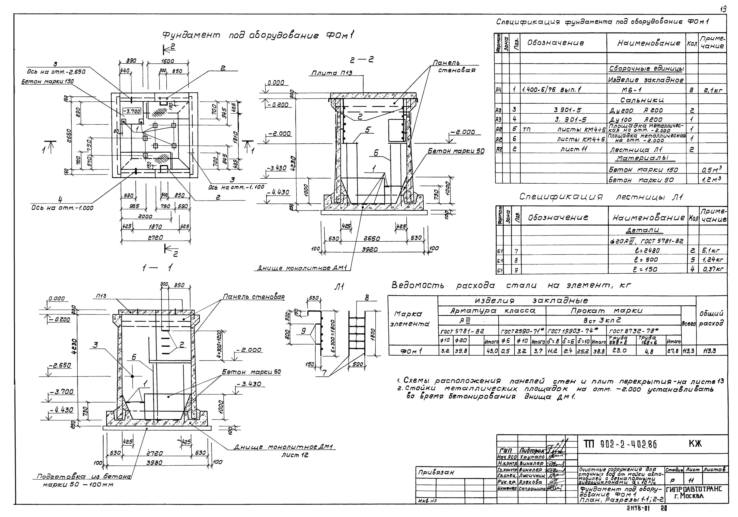
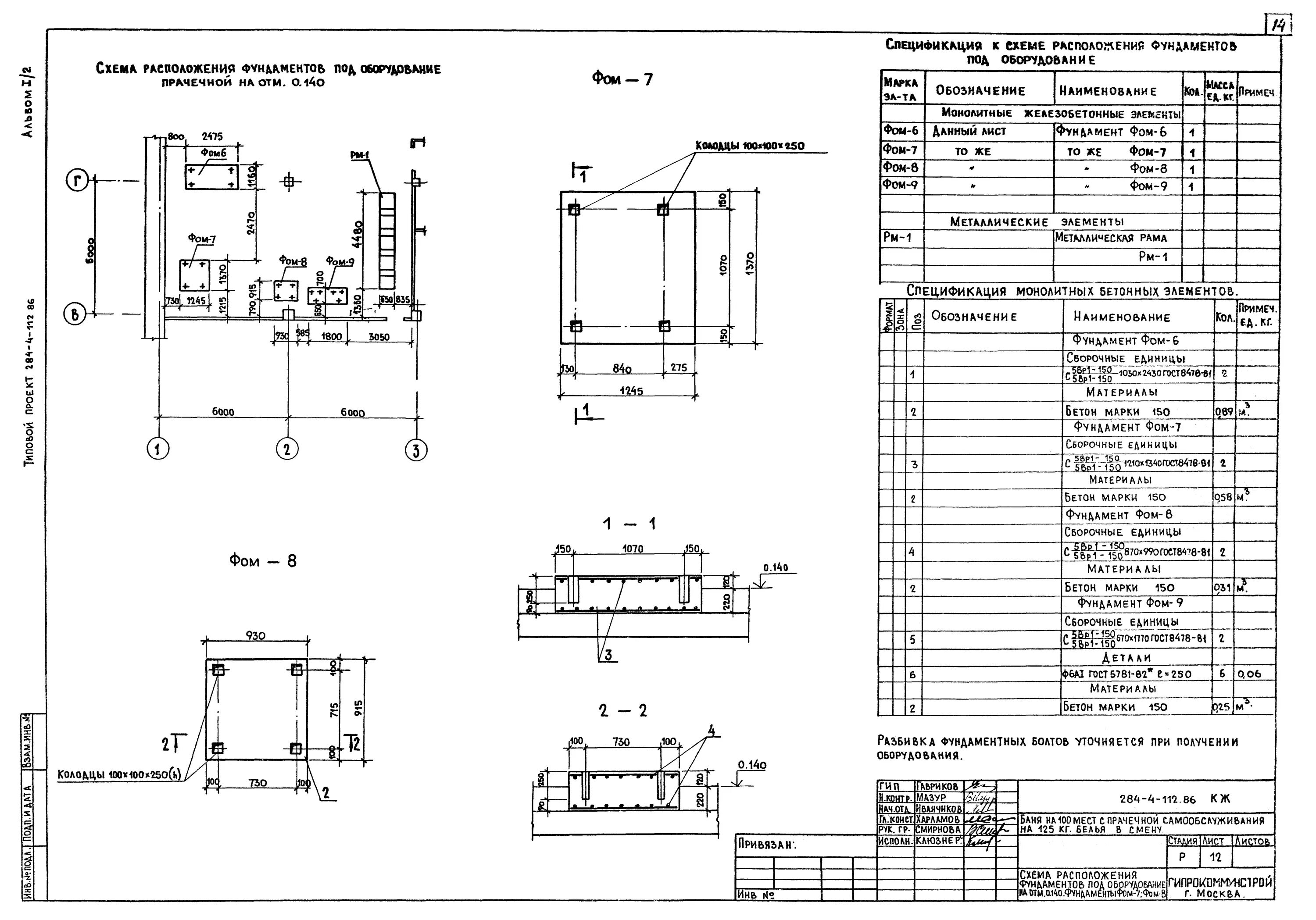
Фундамент агрегата