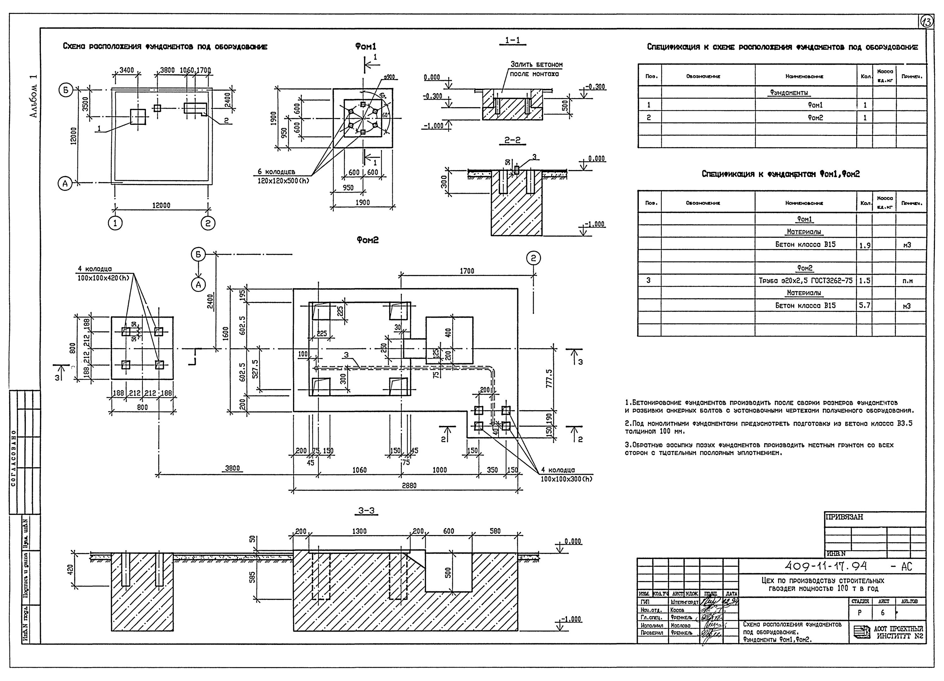
Фундамент под помещение