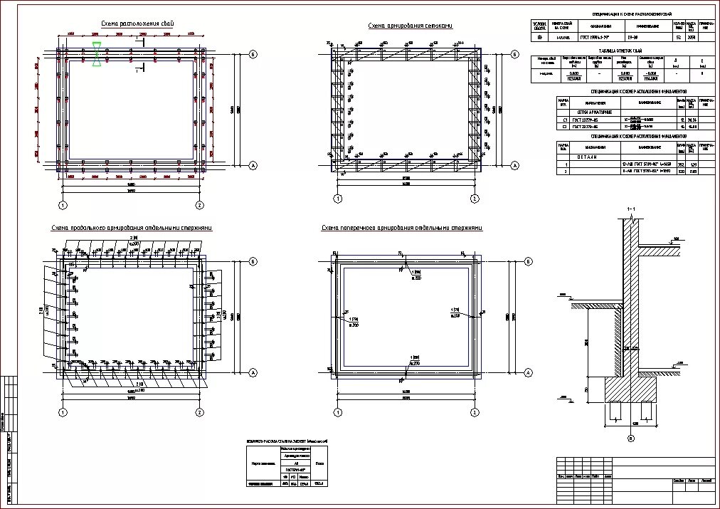
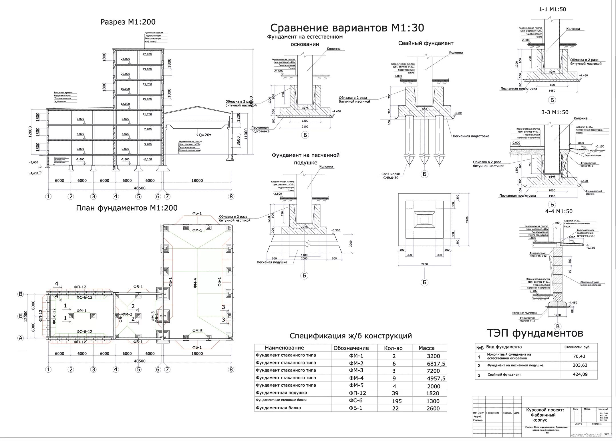
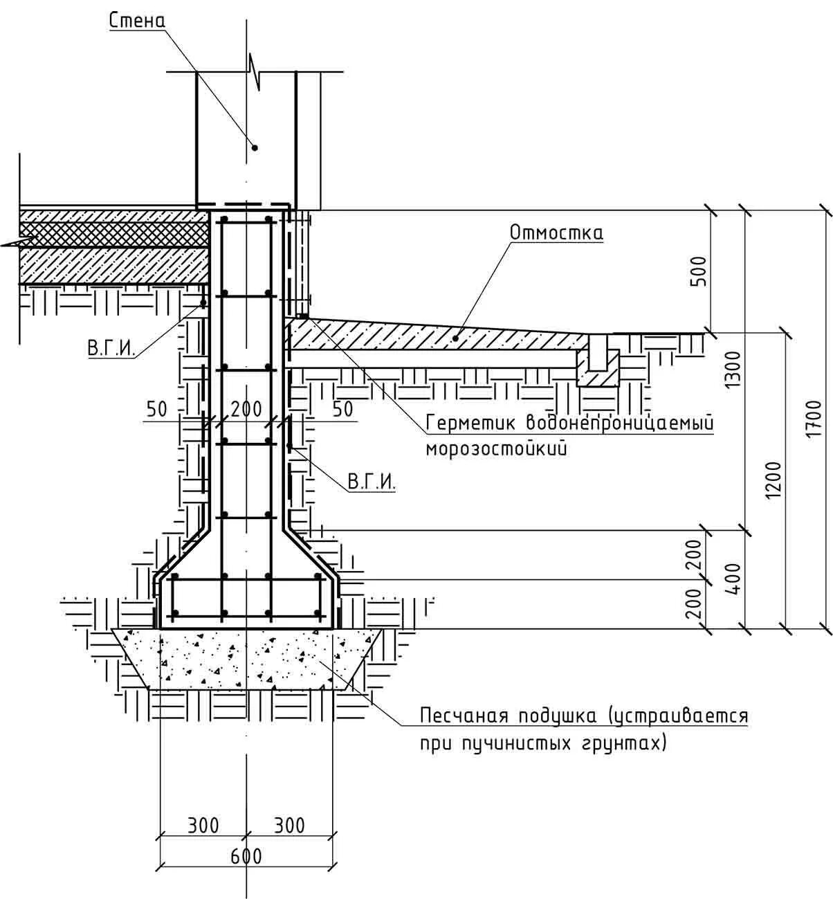
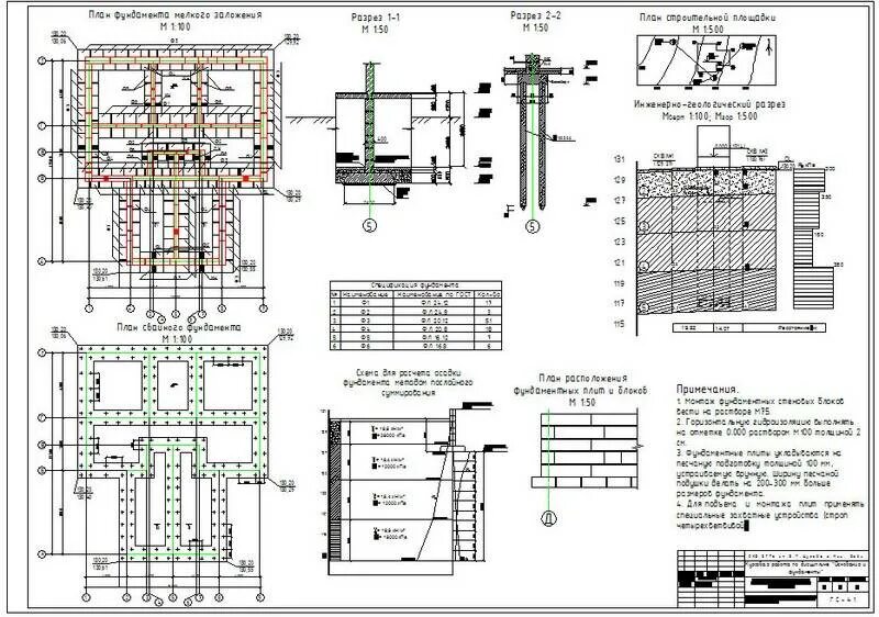
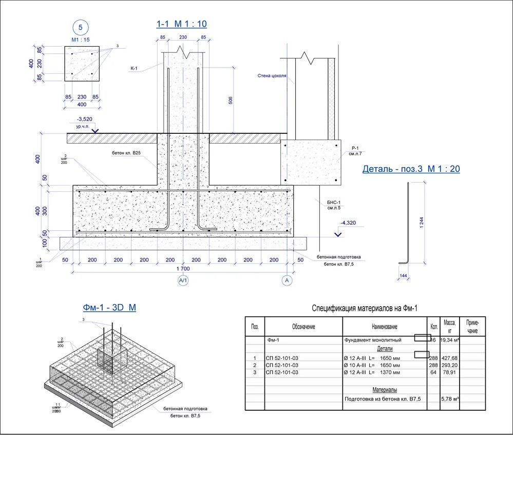
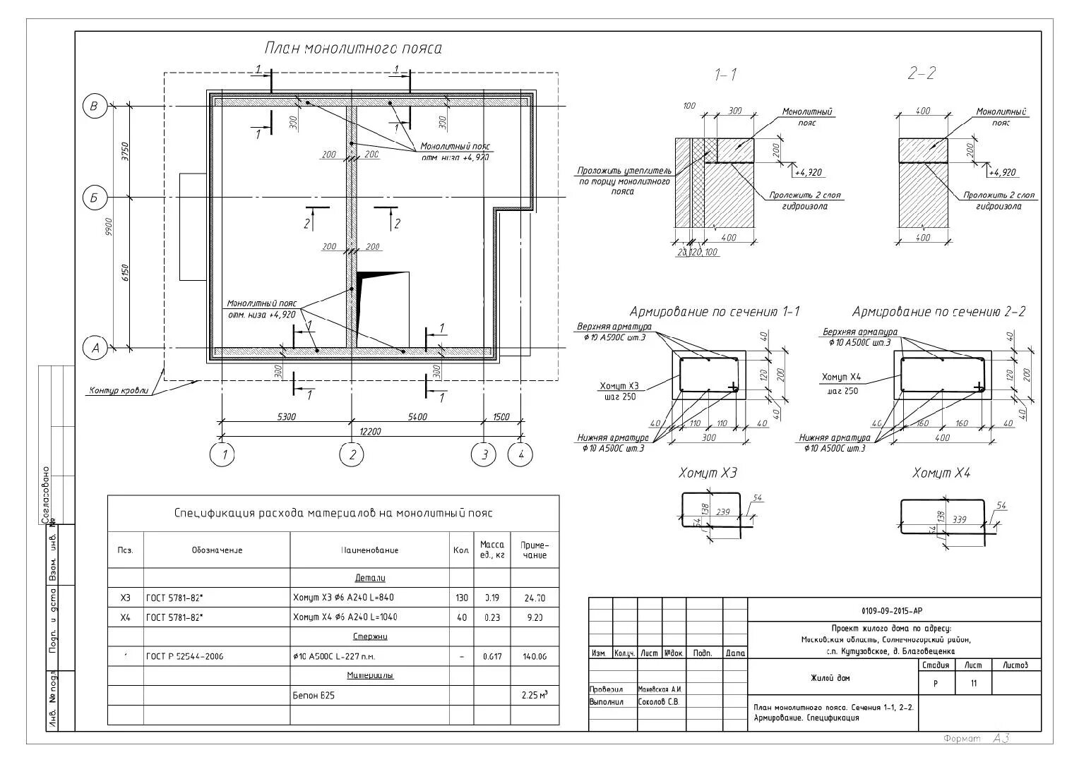
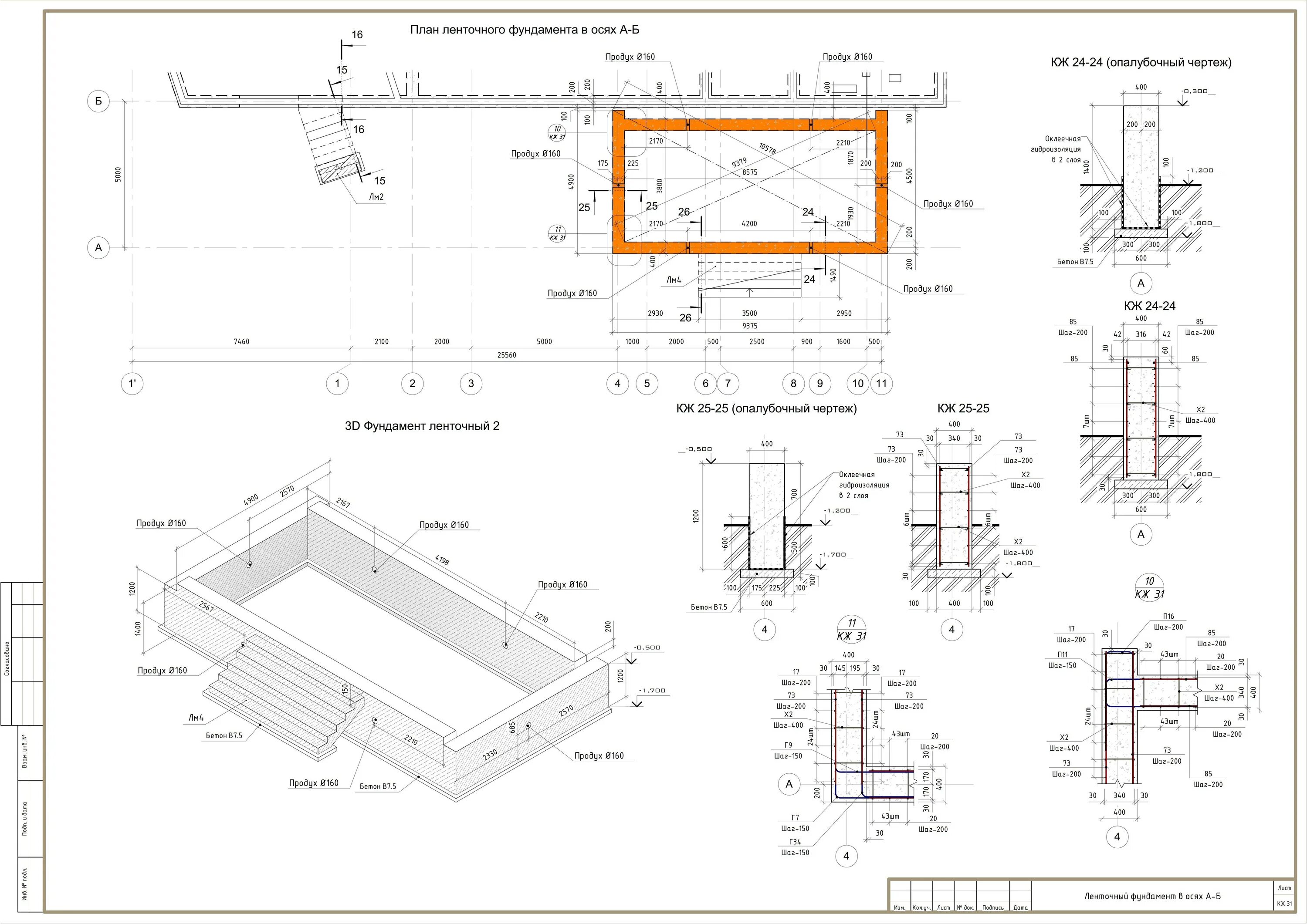
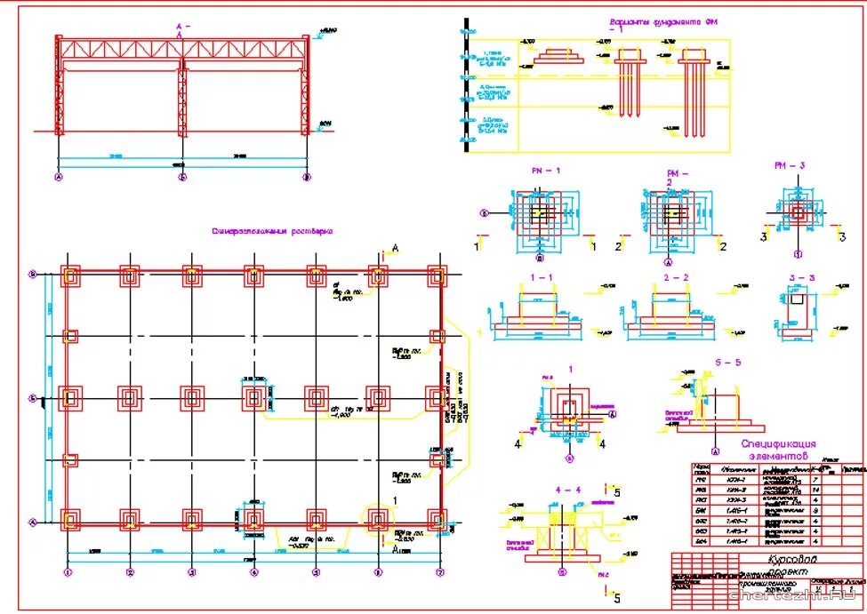
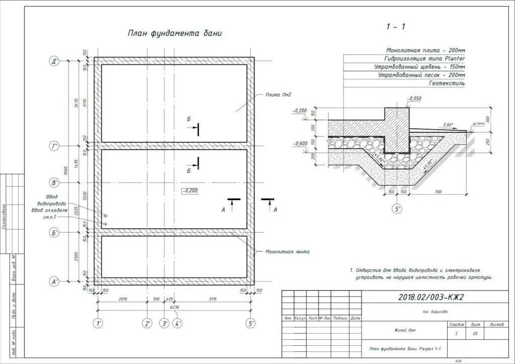
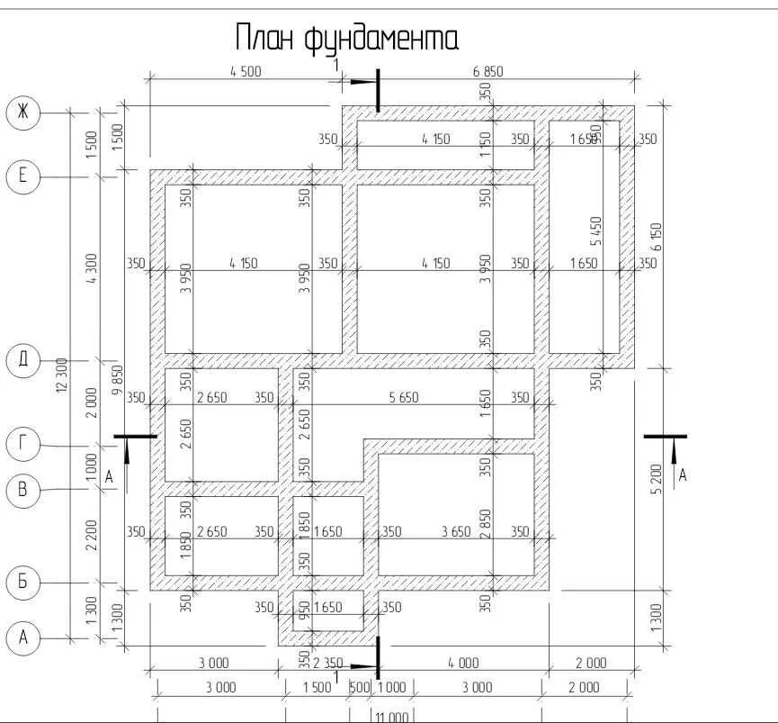
Фундаменты dwg