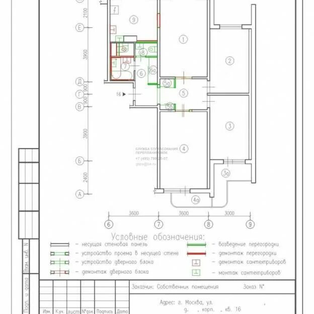
Где в домах несущие стены