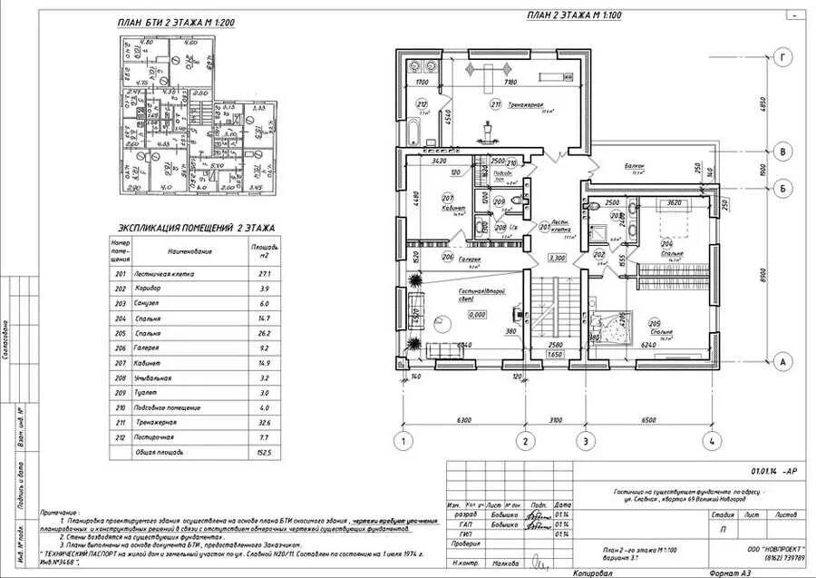
Где взять план частного дома