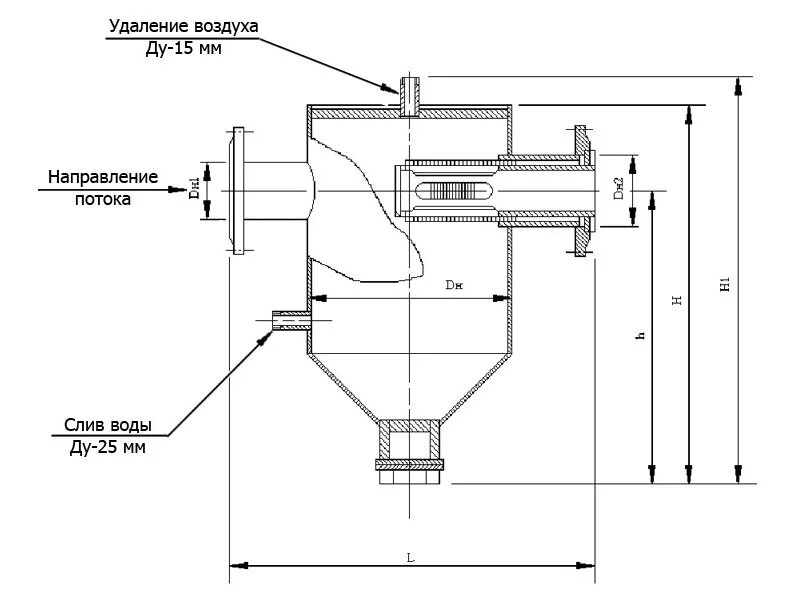
Грязевик тс 569.00 000 13