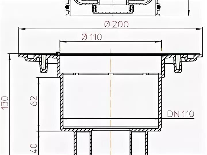
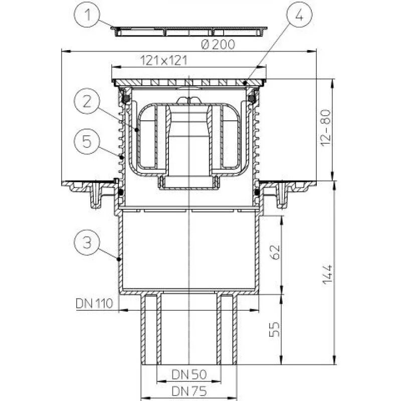
Hl310npr с сифоном primus