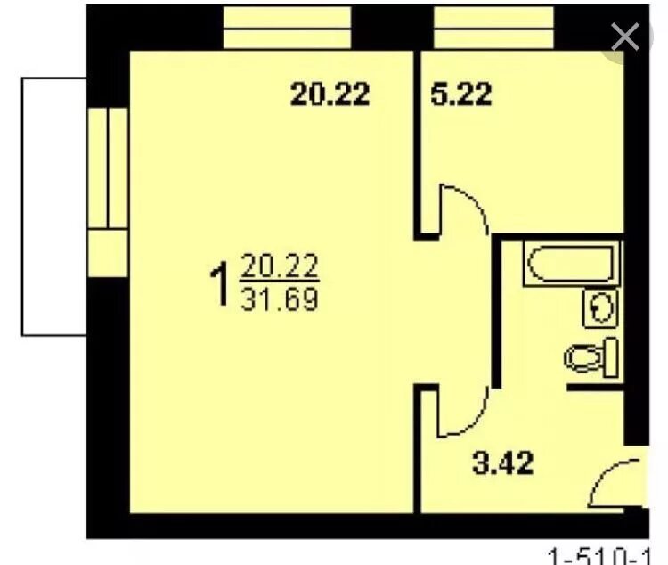
I 510 1