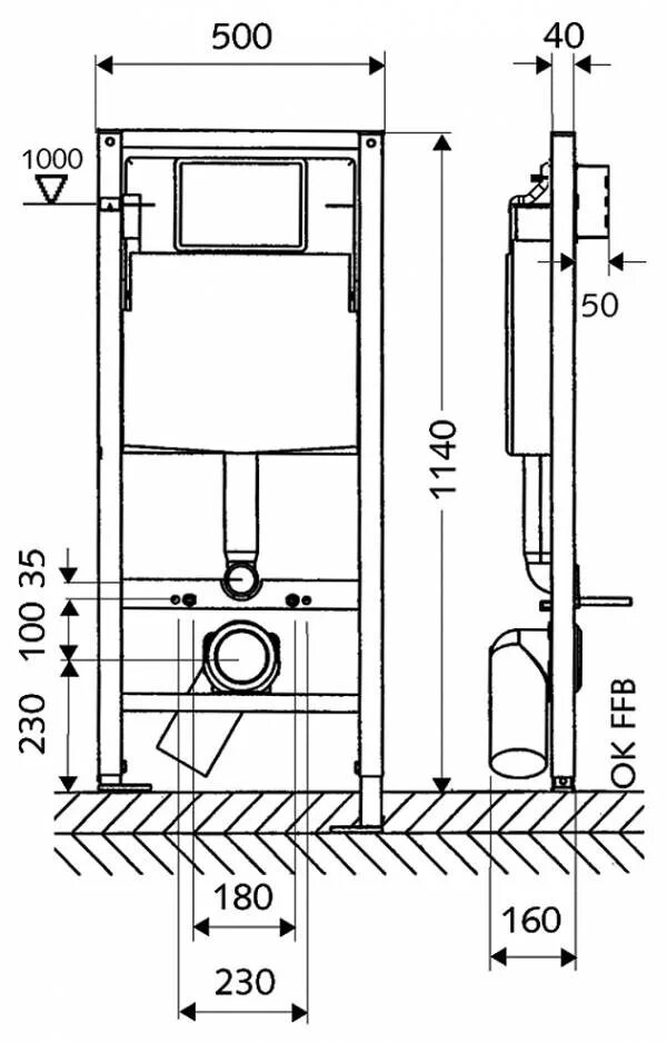
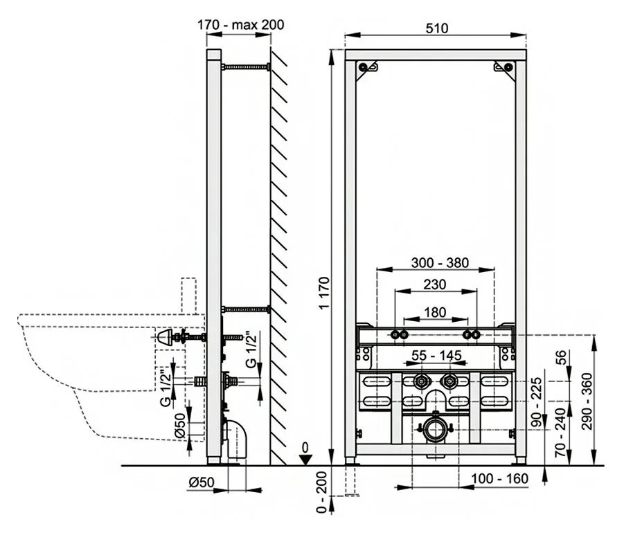
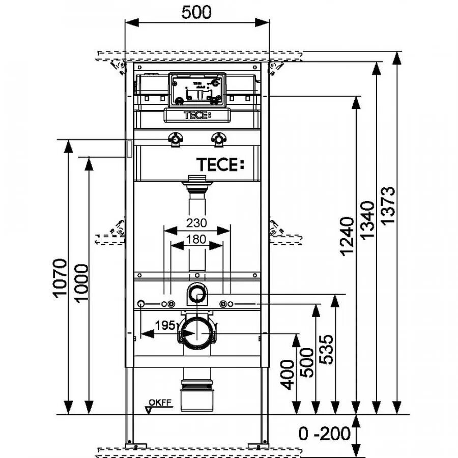
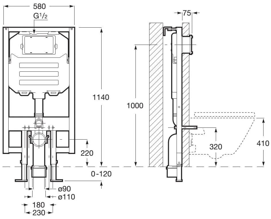
Инсталляция на какой высоте от пола