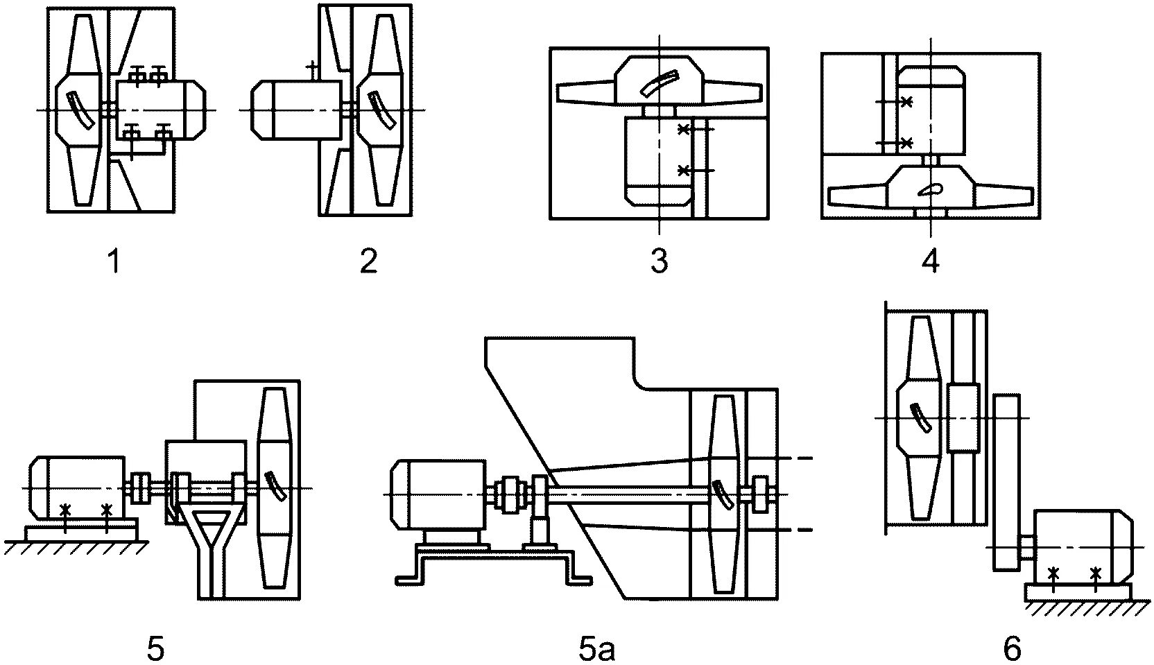
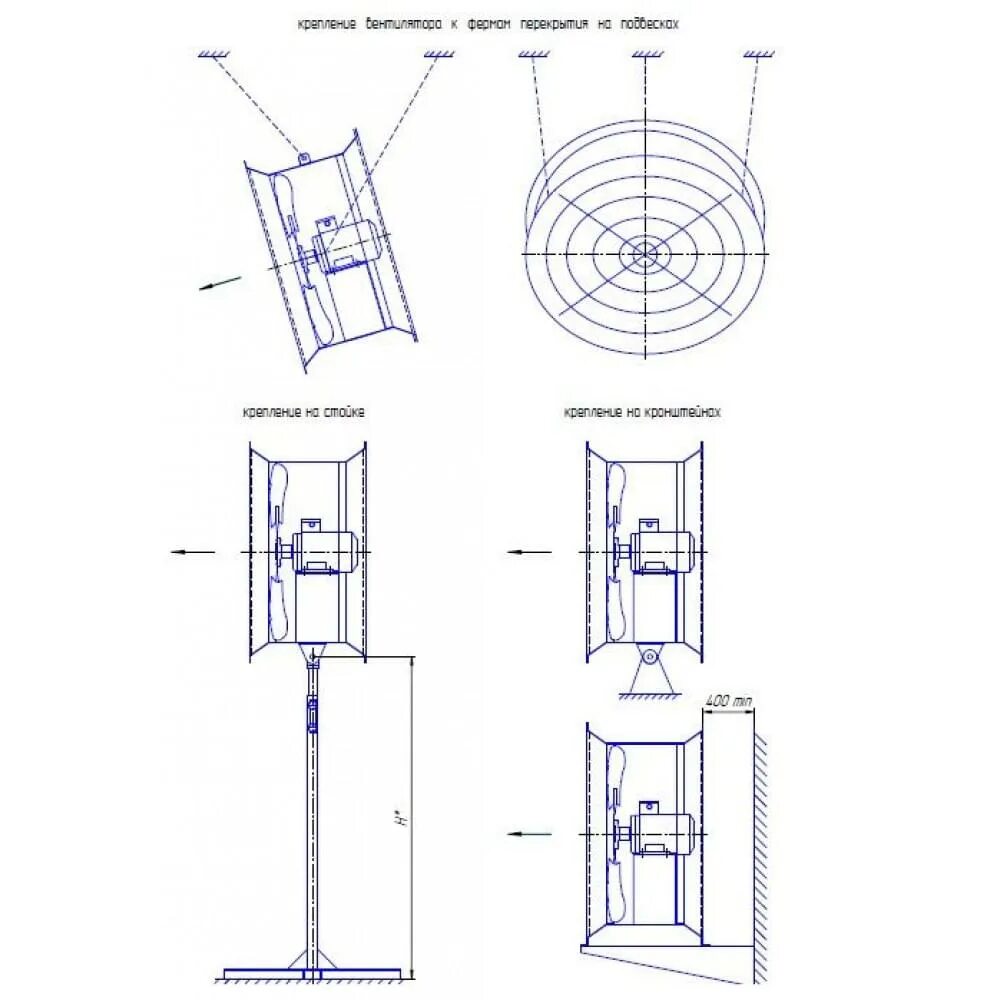
Исполнение осевого вентилятора