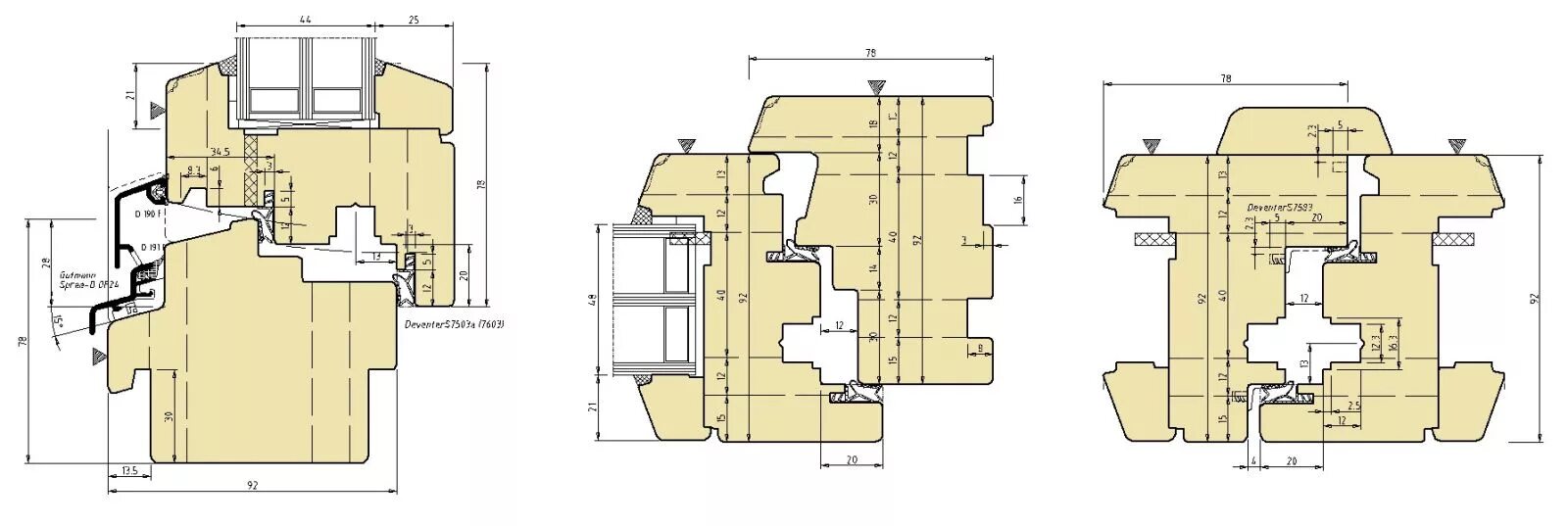
Iv 92