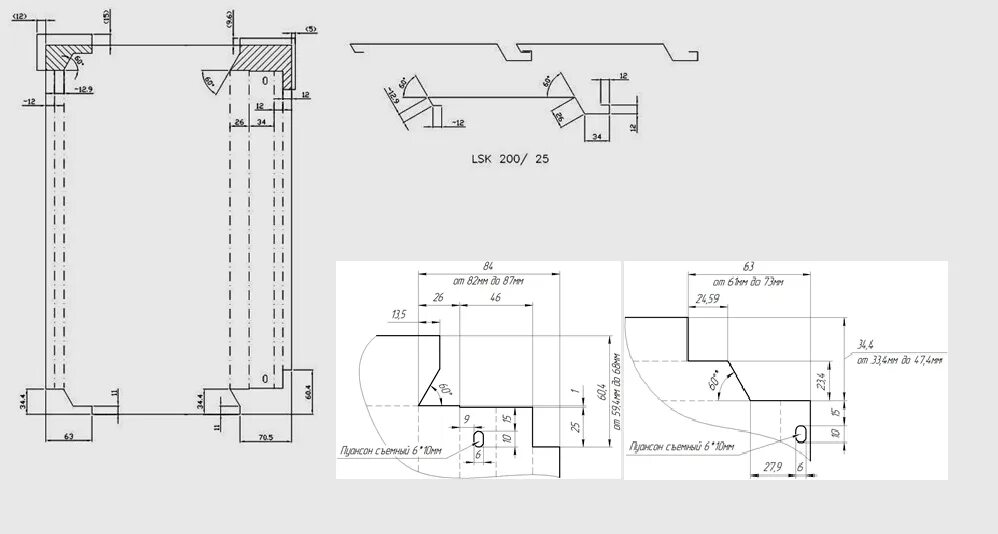
K 200 max