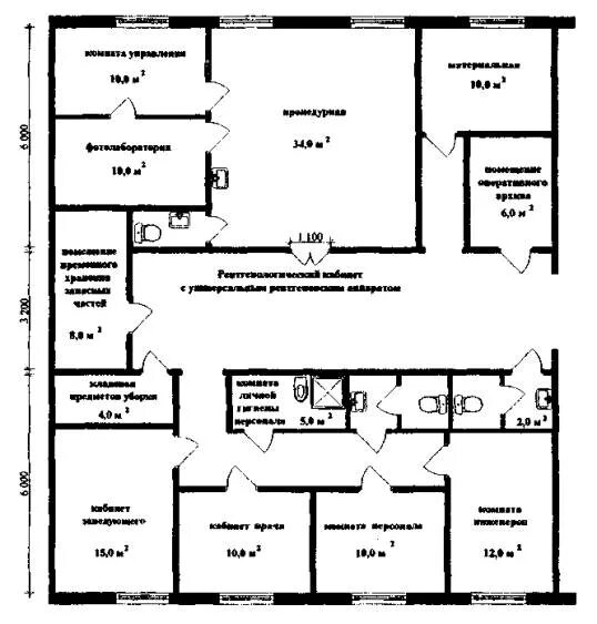
Как называются помещения в больнице