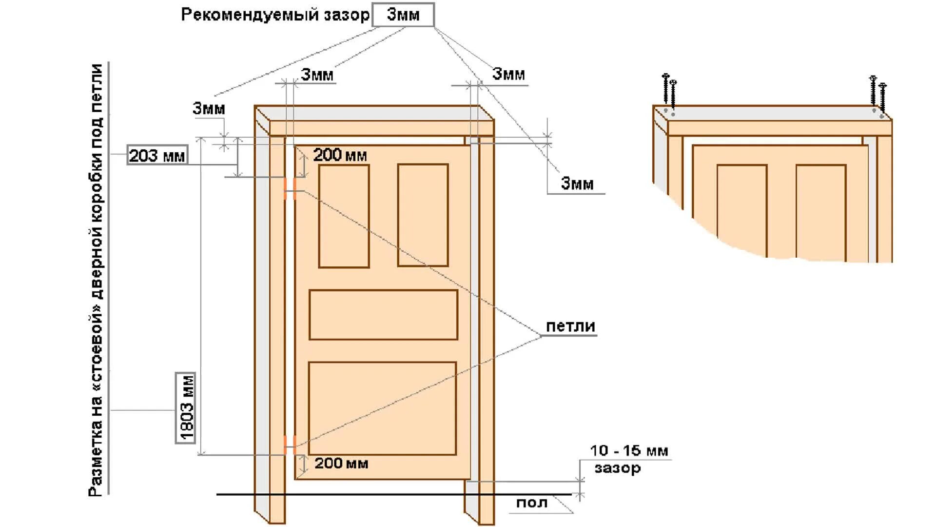
Как правильно поставить дверь в комнатах