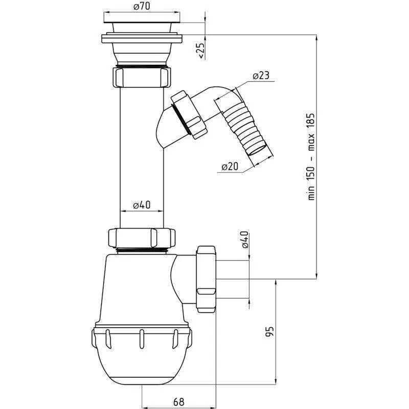
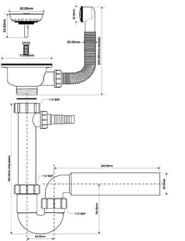
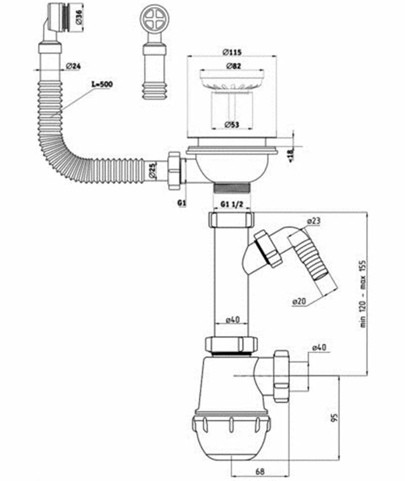
Как правильно установить сифон