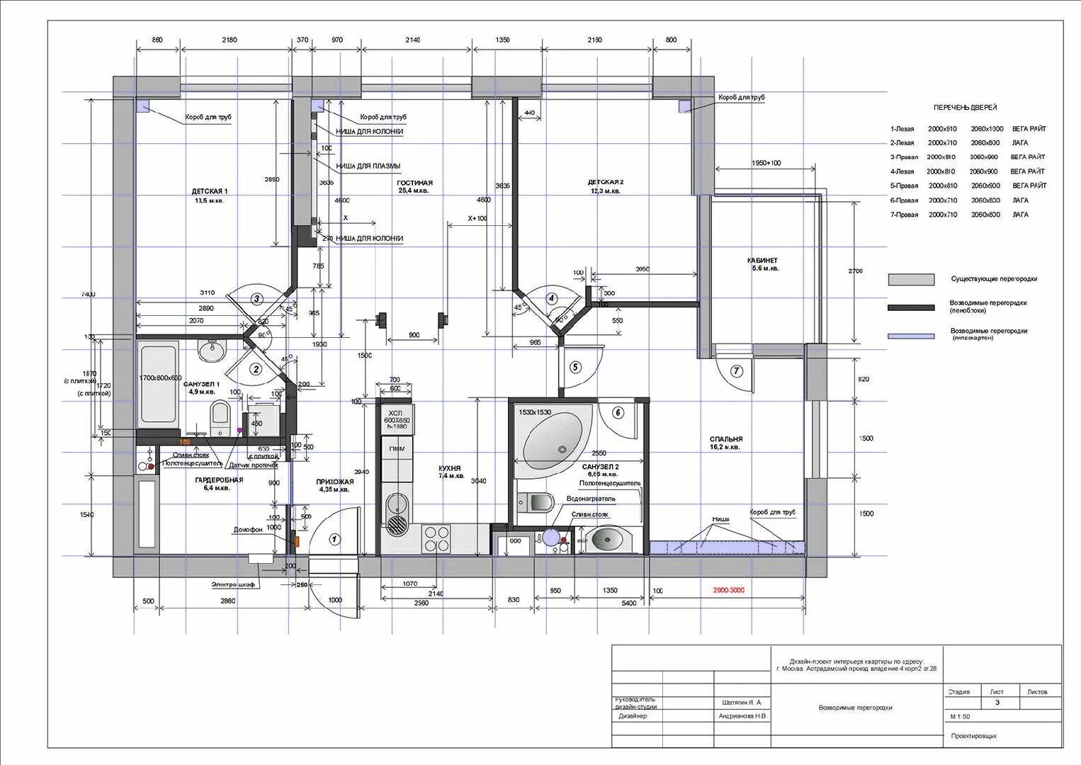
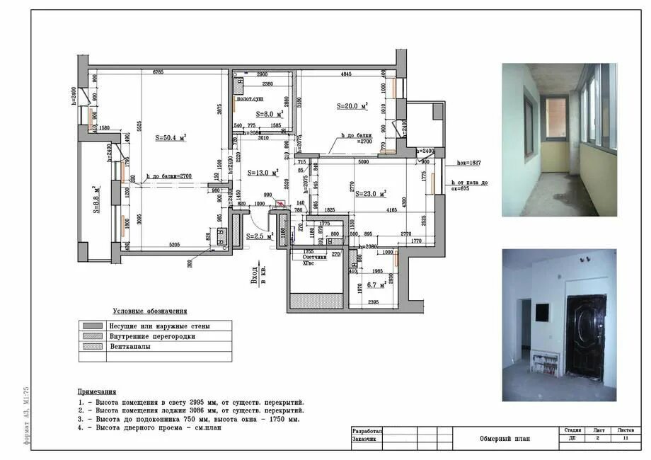
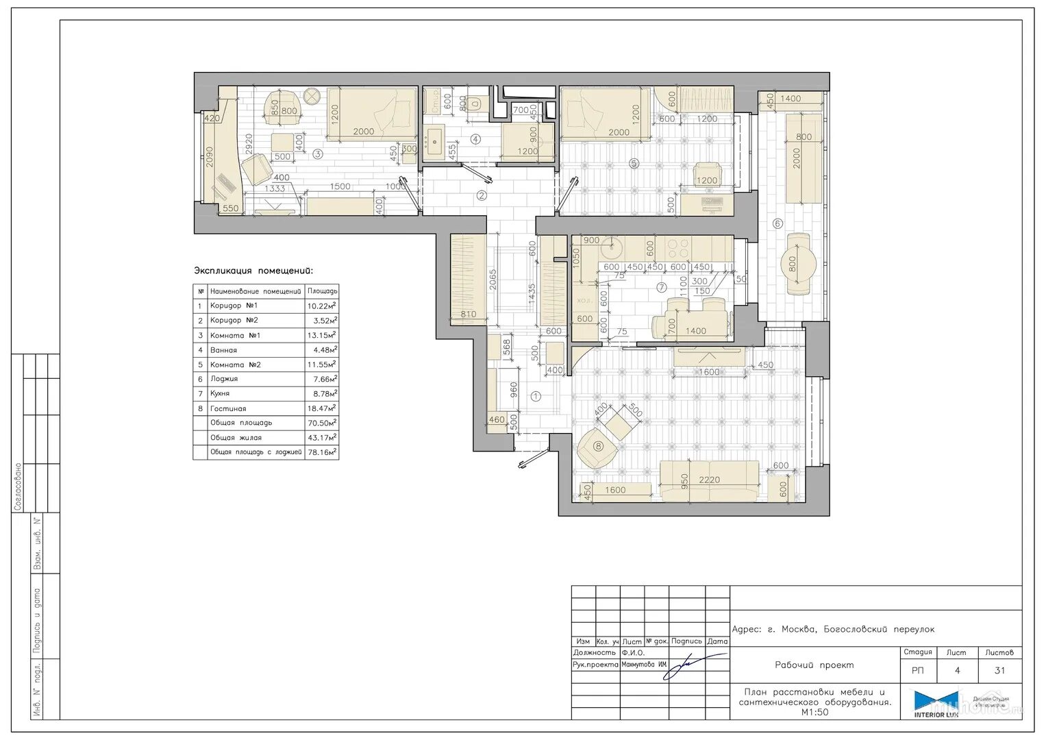
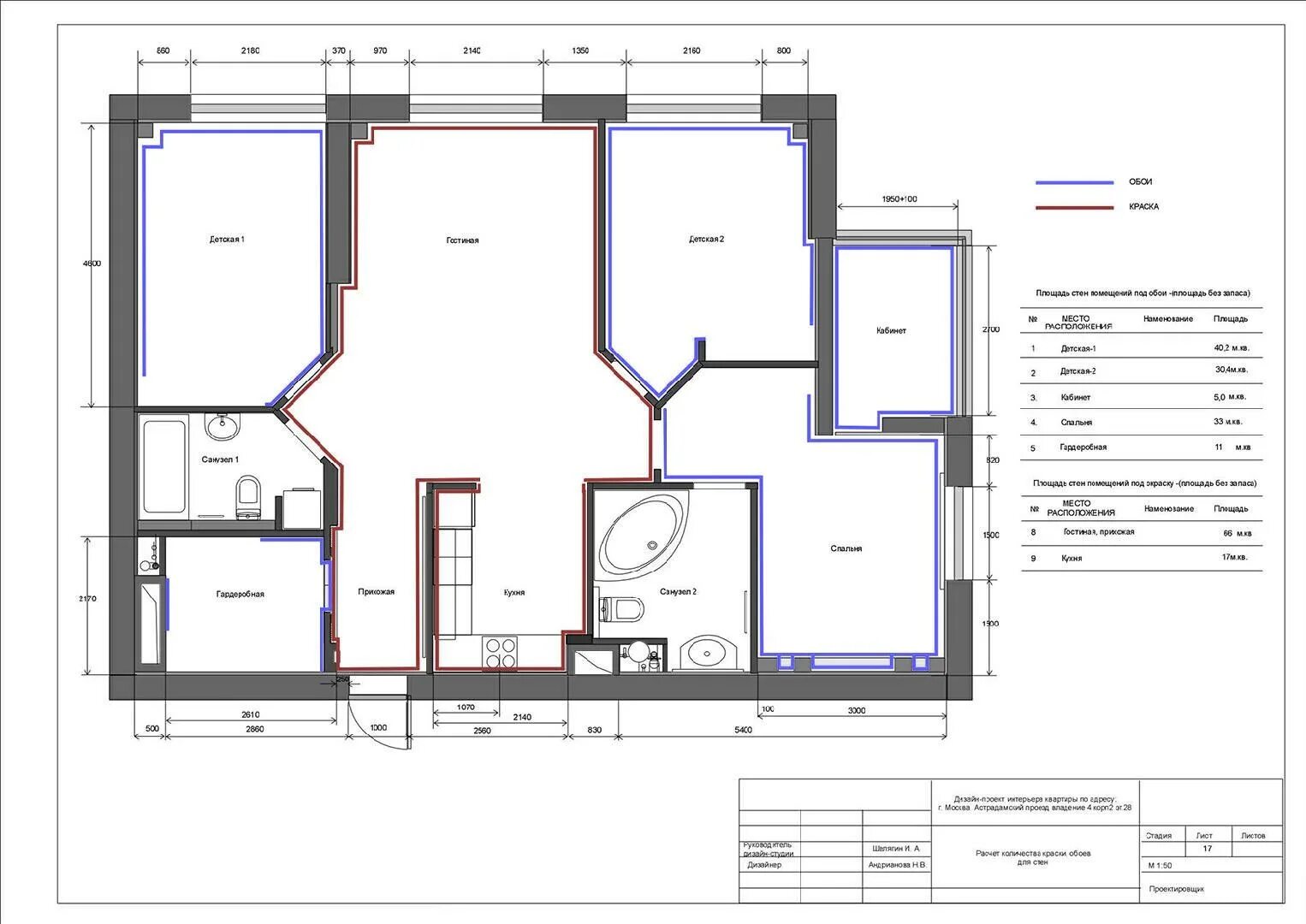
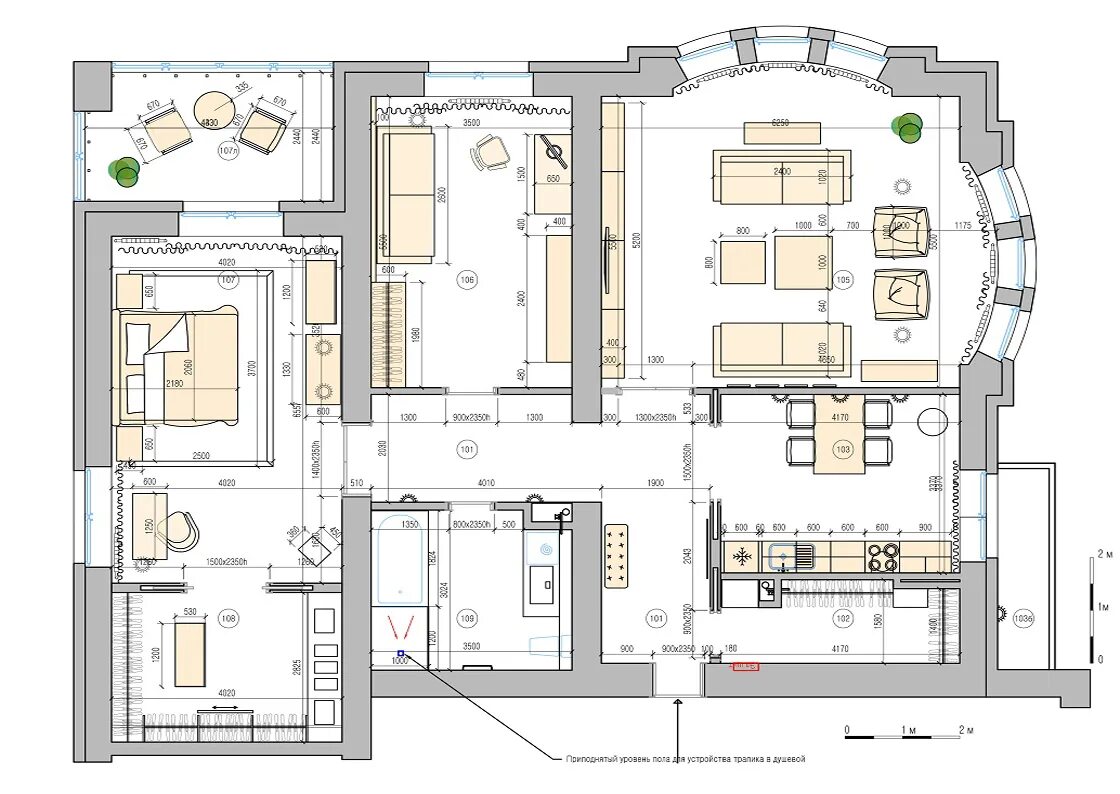
Как выглядит проект квартиры