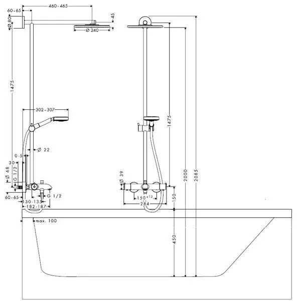
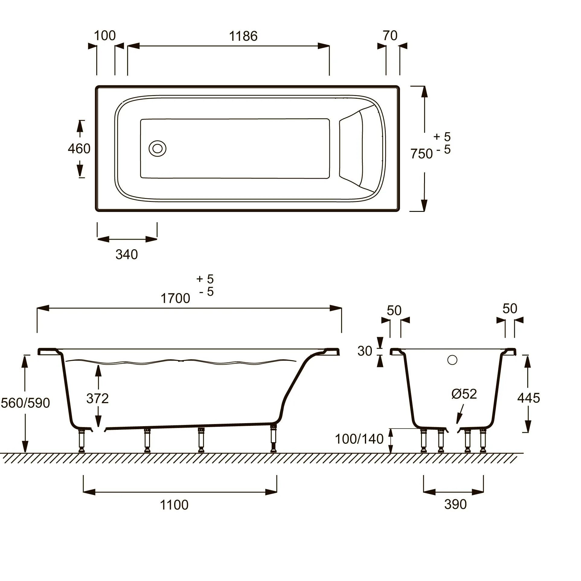
Какую высоту ванной делать